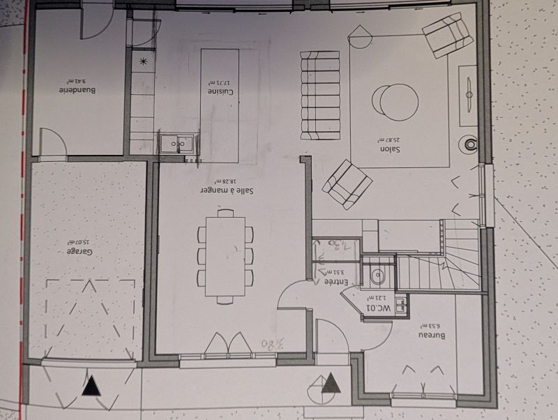
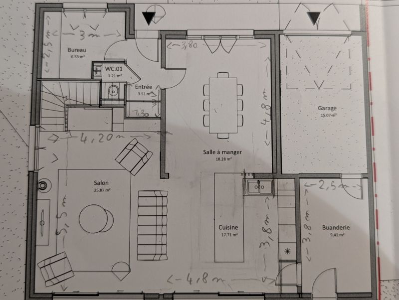
Demande d'Avis sur Plan du RDC avec création d'un étage
Ce sujet comporte 16 messages et a été affiché 239 fois
Nouveau sujet
Répondre
|
4 abonnés surveillent ce sujet |
Membre ultra utile
Membre ultra utile
Membre ultra utile
Membre ultra utile
Membre ultra utile
Membre ultra utile
Membre ultra utile
Membre utileEn cache depuis le lundi 29 décembre 2025 à 06h16
Ce sujet vous a-t-il aidé ?
0
Votez !
0
Votez !
C'est intéressant aussi !
Devis plan de maison
Demandez, en 5 minutes, 3 devis comparatifs aux professionnels de votre région. Gratuit et sans engagement.
Demandez, en 5 minutes, 3 devis comparatifs aux professionnels de votre région. Gratuit et sans engagement.
25 erreurs à éviter dans son plan de maison
Les guides vous aident à y voir plus clair sur la construction.
Les guides vous aident à y voir plus clair sur la construction.
Les 10 maisons les plus extraordinaires des membres ...
L'équipe de Forum Construire sélectionne pour vous les plus belles photos des membres et du web.
L'équipe de Forum Construire sélectionne pour vous les plus belles photos des membres et du web.
4
abonnés
surveillent ce sujet
surveillent ce sujet
Autres discussions sur ce sujet :
-
Où installer la pompe à chaleur? Coffrage Cuisine?
15 réponses Forum Plans de maisons
Résolu -
Avis plan maison 110m2 +étage
55 réponses Forum Plans de maisons -
Idée plan agencement maison 2 étage
11 réponses Forum Plans de maisons -
Conseils et avis plan maison en L avec étage
60 réponses Forum Plans de maisons -
plan maison avec etage
118 réponses Forum Plans de maisons -
Besoin de conseil sur le plan de ma maison et son étage
22 réponses Forum Plans de maisons -
Avez vous des avis sur nos plans svp ?
15 réponses Forum Plans de maisons
Résolu -
Position et aménagement cuisine
15 réponses Forum Plans de maisons -
Avis rénovation ferme R+1 170m² en Haute Savoie
15 réponses Forum Plans de maisons




Nouveau sujet
Répondre








. Soir la cuisine on a aussi directement vu le manque de praticité pour aller a la SaL, bref on verra avec l'archi
C'est intéressant aussi !




Autres discussions sur ce sujet :
Résolu