VEFA : demande avis plan / TMA
Ce sujet comporte 8 messages et a été affiché 268 fois
Nouveau sujet
Répondre
|
3 abonnés surveillent ce sujet |
Membre utile
Membre utile
Membre super utileEn cache depuis le lundi 20 avril 2026 à 20h53
Ce sujet vous a-t-il aidé ?
0
Votez !
0
Votez !
C'est intéressant aussi !
Devis plan de maison
Demandez, en 5 minutes, 3 devis comparatifs aux professionnels de votre région. Gratuit et sans engagement.
Demandez, en 5 minutes, 3 devis comparatifs aux professionnels de votre région. Gratuit et sans engagement.
25 erreurs à éviter dans son plan de maison
Les guides vous aident à y voir plus clair sur la construction.
Les guides vous aident à y voir plus clair sur la construction.
Tour de France : 10 constructions typiques de nos régions ...
L'équipe de Forum Construire sélectionne pour vous les plus belles photos des membres et du web.
L'équipe de Forum Construire sélectionne pour vous les plus belles photos des membres et du web.
3
abonnés
surveillent ce sujet
surveillent ce sujet
Autres discussions sur ce sujet :
-
Maison vefa lotissement : demande d'avis.
32 réponses Forum Plans de maisons -
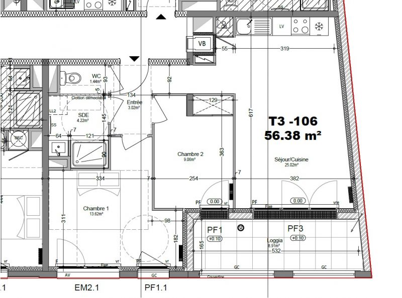
Avis plan appartement vefa - modifications TMA - ajout pièce
42 réponses Forum Plans de maisons -
Aménagement de cuisine ouverte dans appartement en vefa
232 réponses Forum Plans de maisons -
Demande avis pour modifications plan appartement vefa 90m2
162 réponses Forum Plans de maisons -
Plan salle de bain vefa - normes handicaps
56 réponses Forum Plans de maisons




Nouveau sujet
Répondre










C'est intéressant aussi !




Autres discussions sur ce sujet :