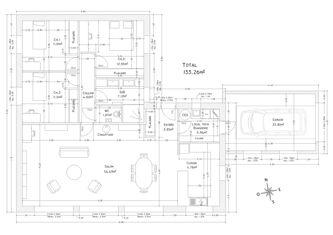
Plan maison plain pied de 133m²
Ce sujet comporte 18 messages et a été affiché 1.327 fois
Nouveau sujet
Répondre
|
8 abonnés surveillent ce sujet |
Membre utile
Membre utile
Membre utile
Membre utile
Membre utile
Membre super utile
Membre ultra utile
Membre utileEn cache depuis le mercredi 22 octobre 2025 à 15h09
Ce sujet vous a-t-il aidé ?
0
Votez !
0
Votez !
C'est intéressant aussi !
Devis plan de maison
Demandez, en 5 minutes, 3 devis comparatifs aux professionnels de votre région. Gratuit et sans engagement.
Demandez, en 5 minutes, 3 devis comparatifs aux professionnels de votre région. Gratuit et sans engagement.
25 erreurs à éviter dans son plan de maison
Les guides vous aident à y voir plus clair sur la construction.
Les guides vous aident à y voir plus clair sur la construction.
Tour de France : 10 constructions typiques de nos régions ...
L'équipe de Forum Construire sélectionne pour vous les plus belles photos des membres et du web.
L'équipe de Forum Construire sélectionne pour vous les plus belles photos des membres et du web.
8
abonnés
surveillent ce sujet
surveillent ce sujet
Autres discussions sur ce sujet :
-
Besoi. D'avis sur notre plan de Maison plain-pied
17 réponses Forum Plans de maisons -
Avis sur plan d'une "tiny house" en Thaïlande
17 réponses Forum Plans de maisons -
Avis sur le plan d'une maison bois de 120m² plain pied
17 réponses Forum Plans de maisons -
Avis et proposition d'évolution sur plain pied de 170m²
17 réponses Forum Plans de maisons -
plan maison R+1 de 77m2 avec garage de 24M2
17 réponses Forum Plans de maisons -
Avis plan de maison plain pied + orientation nord
18 réponses Forum Plans de maisons -
Avis sur 1er jet de plan 120 m2 plain-pied en L
16 réponses Forum Plans de maisons -
Avis plan maison 132m²
17 réponses Forum Plans de maisons
Résolu -
Avis plan maison plain pied 120 m²
17 réponses Forum Plans de maisons




Nouveau sujet
Répondre






C'est intéressant aussi !




Autres discussions sur ce sujet :
Résolu