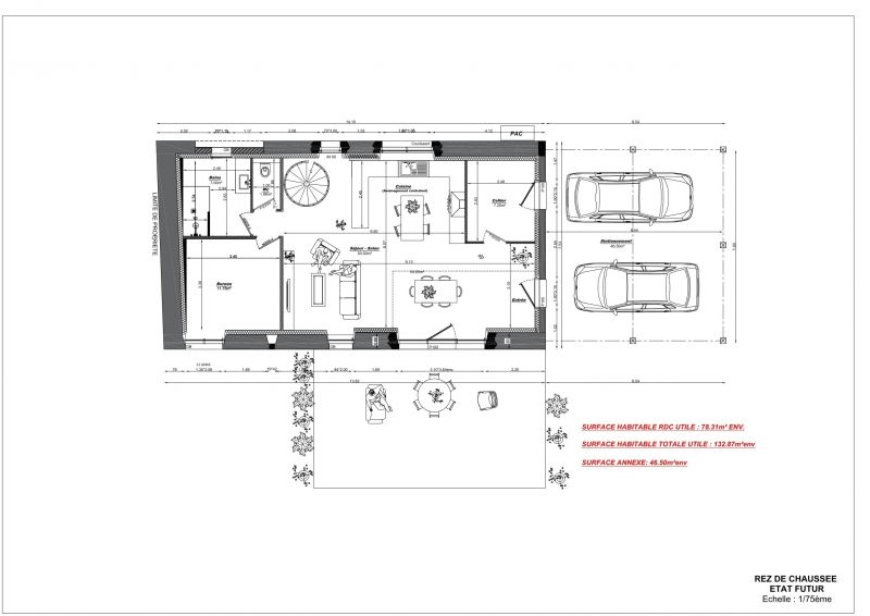
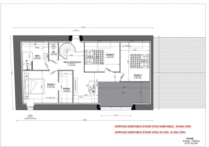
Avis plan de maison réhabilitation grange + agrandissement + carport + garage
Ce sujet comporte 9 messages et a été affiché 205 fois
Nouveau sujet
Répondre
|
3 abonnés surveillent ce sujet |
Membre utile
Membre utile
Membre utile
Membre utile
Membre super utile
Membre utile
Membre super utileEn cache depuis le mardi 28 avril 2026 à 04h33
Ce sujet vous a-t-il aidé ?
0
Votez !
0
Votez !
C'est intéressant aussi !
Devis plan de maison
Demandez, en 5 minutes, 3 devis comparatifs aux professionnels de votre région. Gratuit et sans engagement.
Demandez, en 5 minutes, 3 devis comparatifs aux professionnels de votre région. Gratuit et sans engagement.
25 erreurs à éviter dans son plan de maison
Les guides vous aident à y voir plus clair sur la construction.
Les guides vous aident à y voir plus clair sur la construction.
Les 10 maisons les plus extraordinaires des membres ...
L'équipe de Forum Construire sélectionne pour vous les plus belles photos des membres et du web.
L'équipe de Forum Construire sélectionne pour vous les plus belles photos des membres et du web.
3
abonnés
surveillent ce sujet
surveillent ce sujet
Autres discussions sur ce sujet :
-
Je souhaite agrandir ma maison mais je n'arrive pas a trouver un plan cohérent pour le faire
8 réponses Forum Plans de maisons -
agrandissement garage
29 réponses Forum Plans de maisons -
Avis sur l'agencement intérieur de la maison
5 réponses Forum Plans de maisons -
Avantages et inconvenients entre R+1 ou R+ comble
7 réponses Forum Plans de maisons -
Positionnement de l’escalier, des wc et d’une buanderie
5 réponses Forum Plans de maisons -
Plan non respecté, quels sont nos recours ?
7 réponses Forum Plans de maisons -
Cherche méthode pour dessiner plans 2D d'une maison existante sans les services d'un géomètre
8 réponses Forum Plans de maisons
Résolu -
garage considéré comme annexe ou non ?
8 réponses Forum Plans de maisons
Résolu -
Besoin de votre avis sur notre plan de maison en plain pied
9 réponses Forum Plans de maisons




Nouveau sujet
Répondre






Edité 4 fois, la dernière fois il y a +5 mois.

C'est intéressant aussi !




Autres discussions sur ce sujet :
Résolu