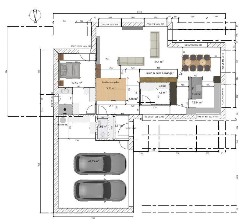
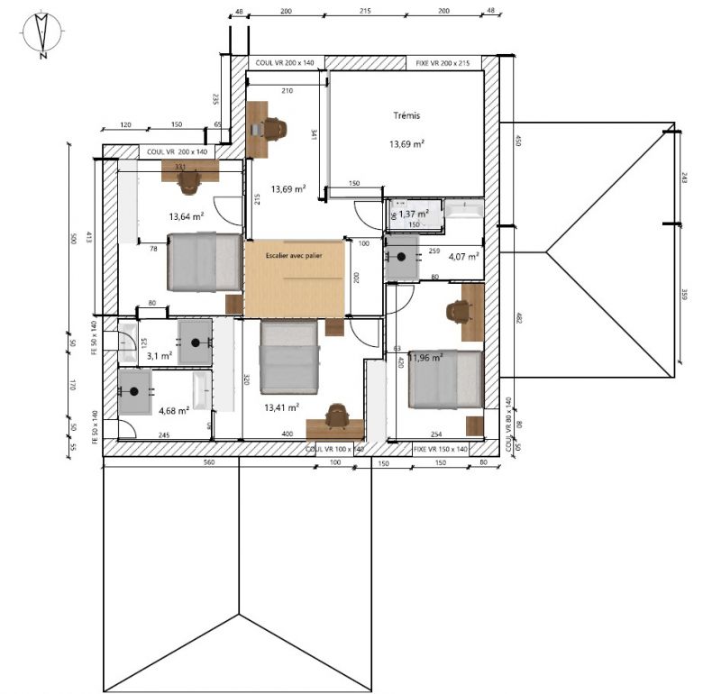
Plan maison R+1 dans la 13
Ce sujet comporte 19 messages et a été affiché 280 fois
Nouveau sujet
Répondre
|
2 abonnés surveillent ce sujet |
Membre ultra utile
Membre super utile
Membre utile
Membre ultra utile
Membre utile
Membre utile
Membre utile
Membre utile
Membre utile
Membre utile
Membre ultra utile
Membre super utile
Membre ultra utileEn cache depuis le jeudi 19 mars 2026 à 18h35
Ce sujet vous a-t-il aidé ?
0
Votez !
0
Votez !
C'est intéressant aussi !
Devis plan de maison
Demandez, en 5 minutes, 3 devis comparatifs aux professionnels de votre région. Gratuit et sans engagement.
Demandez, en 5 minutes, 3 devis comparatifs aux professionnels de votre région. Gratuit et sans engagement.
25 erreurs à éviter dans son plan de maison
Les guides vous aident à y voir plus clair sur la construction.
Les guides vous aident à y voir plus clair sur la construction.
Tour de France : 10 constructions typiques de nos régions ...
L'équipe de Forum Construire sélectionne pour vous les plus belles photos des membres et du web.
L'équipe de Forum Construire sélectionne pour vous les plus belles photos des membres et du web.
2
abonnés
surveillent ce sujet
surveillent ce sujet
Autres discussions sur ce sujet :
-
Avis plan de maison en L
13 réponses Forum Plans de maisons -
Demande d'Avis sur plan du RDC avec création d'un étage
15 réponses Forum Plans de maisons -
Avis plan maison plain pied 150m² + grand garage
6 réponses Forum Plans de maisons -
Avis plan de maison réhabilitation grange + agrandissement + carport + garage
8 réponses Forum Plans de maisons -
Décalage de niveau entre salon et séjour ???
20 réponses Forum Plans de maisons -
Aménagements libres, à vos bonnes idées !
17 réponses Forum Plans de maisons -
[Sketchup / Layout ] - Aide plans permis de construire
16 réponses Forum Plans de maisons -
Avis plan maison à étage avec patio
5 réponses Forum Plans de maisons -
Demande d'avis plan maison + CCMI constructeur local (85)
21 réponses Forum Plans de maisons




Nouveau sujet
Répondre







Edité 1 fois, la dernière fois il y a +3 mois.


C'est intéressant aussi !




Autres discussions sur ce sujet :