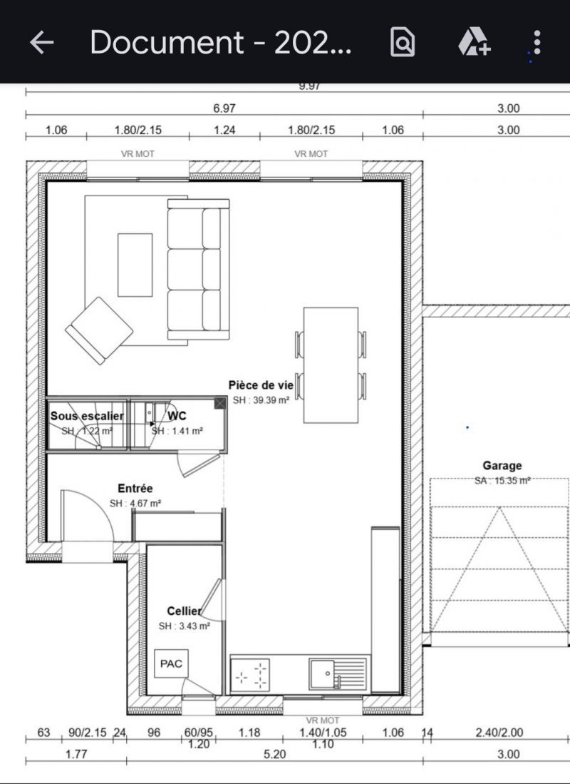
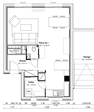
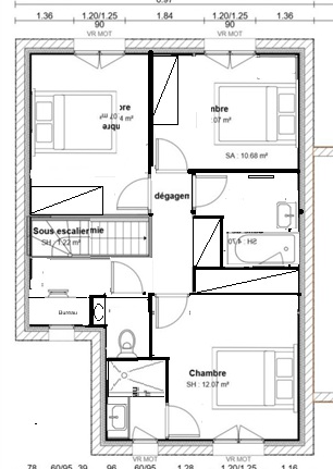
Avis plan de maison (petite façade) Résolu
Ce sujet comporte 27 messages et a été affiché 320 fois
Nouveau sujet
Répondre
|
4 abonnés surveillent ce sujet |
Bloggeur
Membre utile
Membre utile
Bloggeur
Membre utile
Bloggeur
Bloggeur
Membre super utile
Bloggeur
Membre utile
Bloggeur
Membre utile
Membre utile
Membre utile
Membre utile
Membre utile
Bloggeur
Bloggeur
Bloggeur
Bloggeur
Membre utile
Membre utile
Membre utile
Bloggeur
Bloggeur
Membre utile
BloggeurEn cache depuis le jeudi 30 avril 2026 à 02h09
Ce sujet vous a-t-il aidé ?
0
Votez !
0
Votez !
C'est intéressant aussi !
Devis plan de maison
Demandez, en 5 minutes, 3 devis comparatifs aux professionnels de votre région. Gratuit et sans engagement.
Demandez, en 5 minutes, 3 devis comparatifs aux professionnels de votre région. Gratuit et sans engagement.
25 erreurs à éviter dans son plan de maison
Les guides vous aident à y voir plus clair sur la construction.
Les guides vous aident à y voir plus clair sur la construction.
Les 10 maisons les plus extraordinaires des membres ...
L'équipe de Forum Construire sélectionne pour vous les plus belles photos des membres et du web.
L'équipe de Forum Construire sélectionne pour vous les plus belles photos des membres et du web.
4
abonnés
surveillent ce sujet
surveillent ce sujet
Autres discussions sur ce sujet :
-
maison petite façade 8m
11 réponses Forum Plans de maisons -
[Version n°2] Avis sur les plans maison R+1 partiel facade sud de 165 m² avec garage en sous sol
30 réponses Forum Plans de maisons -
Avis plan maison RDC 80m2 façade de 9m
31 réponses Forum Plans de maisons
Résolu -
Au début nous voulions 3 chambres et un bureau à l'étage.. Finalement les chambres étaient trop petites..
28 réponses Forum Plans de maisons -
maison exposition sud est ou faut til'vraiment sud?
23 réponses Forum Plans de maisons -
Plan de maison 7m de facade
19 réponses Forum Plans de maisons -
Construction d'une maison sur terrain étroit_10m de façade
9 réponses Forum Plans de maisons -
Votre avis sur ce plan de petite maison avec mezzanine
26 réponses Forum Plans de maisons -
Chambre 7,4m2 c'est envisageable ?
23 réponses Forum Plans de maisons




Nouveau sujet
Répondre





Edité 4 fois, la dernière fois il y a +4 mois.








C'est intéressant aussi !




Autres discussions sur ce sujet :
Résolu