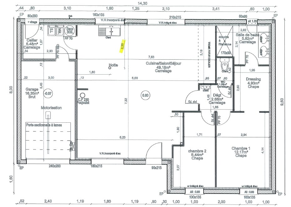
Avis plan 92m²
Ce sujet comporte 41 messages et a été affiché 7.449 fois
Nouveau sujet
Répondre
|
7 abonnés surveillent ce sujet |
Membre ultra utile
Super bloggeur
Membre super utile
Membre ultra utile
Membre super utile
Membre super utile
Photographe pro
Photographe
Photographe pro
Photographe pro
Nouvel Aviseur
Photographe
Photographe pro
Membre utileEn cache depuis le dimanche 26 avril 2026 à 05h59
Ce sujet vous a-t-il aidé ?
0
Votez !
0
Votez !
C'est intéressant aussi !
Devis plan de maison
Demandez, en 5 minutes, 3 devis comparatifs aux professionnels de votre région. Gratuit et sans engagement.
Demandez, en 5 minutes, 3 devis comparatifs aux professionnels de votre région. Gratuit et sans engagement.
25 erreurs à éviter dans son plan de maison
Les guides vous aident à y voir plus clair sur la construction.
Les guides vous aident à y voir plus clair sur la construction.
Tour de France : 10 constructions typiques de nos régions ...
L'équipe de Forum Construire sélectionne pour vous les plus belles photos des membres et du web.
L'équipe de Forum Construire sélectionne pour vous les plus belles photos des membres et du web.
7
abonnés
surveillent ce sujet
surveillent ce sujet
Autres discussions sur ce sujet :
-
Contemporaine R+1
36 réponses Forum Plans de maisons -
avis plan maison
44 réponses Forum Plans de maisons -
avis plan maison
25 réponses Forum Plans de maisons -
Salle de 33m2
40 réponses Forum Plans de maisons -
avis plan maison
29 réponses Forum Plans de maisons -
avis sur plan
29 réponses Forum Plans de maisons -
avis plan maison
29 réponses Forum Plans de maisons -
avis sur plans
41 réponses Forum Plans de maisons -
Conseils aménagement
36 réponses Forum Plans de maisons




Nouveau sujet
Répondre






c'est tellement rare
ON NE TOUCHE PAS A LA GRANDE CHAMBRE !!!!!
et les autres 






C'est intéressant aussi !




Autres discussions sur ce sujet :