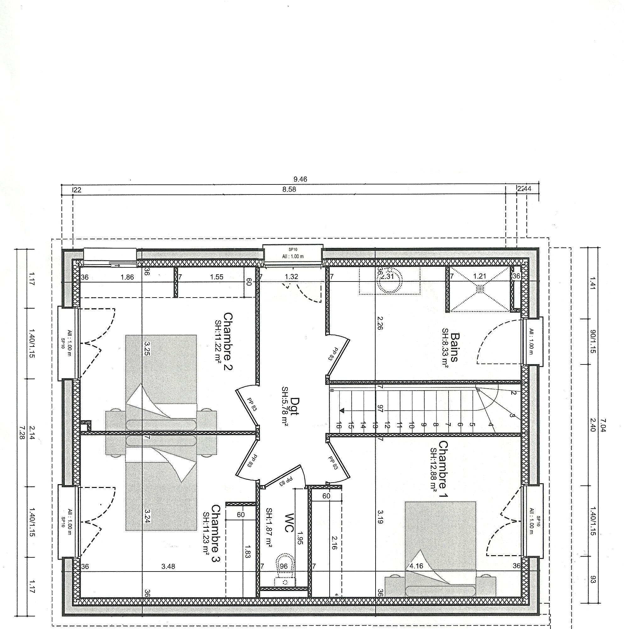
Plan maison R+1 entre 140 et 155m²
Ce sujet comporte 106 messages et a été affiché 6.829 fois
Nouveau sujet
Répondre
|
8 abonnés surveillent ce sujet |
Membre ultra utile
Membre ultra utile
Membre ultra utile
Membre ultra utile
Membre super utile
Membre ultra utile
Membre super utile
Membre ultra utile
Membre ultra utile
Ce sujet vous a-t-il aidé ?
0
Votez !
0
Votez !
C'est intéressant aussi !
Devis plan de maison
Demandez, en 5 minutes, 3 devis comparatifs aux professionnels de votre région. Gratuit et sans engagement.
Demandez, en 5 minutes, 3 devis comparatifs aux professionnels de votre région. Gratuit et sans engagement.
25 erreurs à éviter dans son plan de maison
Les guides vous aident à y voir plus clair sur la construction.
Les guides vous aident à y voir plus clair sur la construction.
Tour de France : 10 constructions typiques de nos régions ...
L'équipe de Forum Construire sélectionne pour vous les plus belles photos des membres et du web.
L'équipe de Forum Construire sélectionne pour vous les plus belles photos des membres et du web.
8
abonnés
surveillent ce sujet
surveillent ce sujet
Autres discussions sur ce sujet :
-
plan maison fait par moi même, à vos critiques
112 réponses Forum Plans de maisons -
Avis terrain + plan maison
90 réponses Forum Plans de maisons
Résolu -
maison de 100m² a étage, a vos avis!!
96 réponses Forum Plans de maisons -
Idées pour agencement chambre parentale ?
101 réponses Forum Plans de maisons -
plan d'éxecution non conforme aux plans PC
106 réponses Forum Plans de maisons
Résolu -
[mccyrille] : Vos avis sur mes plans (R+1+SS, bioclimatique)
95 réponses Forum Plans de maisons -
Optimiser maison compacte 90 m² : nouveau plan p.5 !!
100 réponses Forum Plans de maisons -
Avis plan maison 135m² + garage + annexes 80m²
94 réponses Forum Plans de maisons -
plan d'une maison 155 m² sur R+1 pour avis
105 réponses Forum Plans de maisons




Nouveau sujet
Répondre

Edité 2 fois, la dernière fois il y a +9 ans.


.
exact, lorsque j'ai fait mes plans j'avais copié ce qu'on voyait de + en + : cellier-machin au fond de la cuisine, la panière faisait donc le trajet sdo-couloir-escalier-entrée-salle-cuisine-arrièrecuisine-garage (la partie LL SL est au fond du garage pas encore fermée)...
"attention en d'ssous" et ... la pile atterri




C'est intéressant aussi !




Autres discussions sur ce sujet :
Résolu