Avis Plan Maison R+1 de 123m² 3 chambres - 1 bureau
Ce sujet comporte 13 messages et a été affiché 566 fois
Nouveau sujet
Répondre
|
6 abonnés surveillent ce sujet |
Membre utile
Bloggeur
Membre ultra utile
Membre ultra utile
Membre ultra utileEn cache depuis le vendredi 13 mars 2026 à 04h36
Ce sujet vous a-t-il aidé ?
0
Votez !
0
Votez !
C'est intéressant aussi !
Devis plan de maison
Demandez, en 5 minutes, 3 devis comparatifs aux professionnels de votre région. Gratuit et sans engagement.
Demandez, en 5 minutes, 3 devis comparatifs aux professionnels de votre région. Gratuit et sans engagement.
25 erreurs à éviter dans son plan de maison
Les guides vous aident à y voir plus clair sur la construction.
Les guides vous aident à y voir plus clair sur la construction.
Tour de France : 10 constructions typiques de nos régions ...
L'équipe de Forum Construire sélectionne pour vous les plus belles photos des membres et du web.
L'équipe de Forum Construire sélectionne pour vous les plus belles photos des membres et du web.
6
abonnés
surveillent ce sujet
surveillent ce sujet
Autres discussions sur ce sujet :
-
Aide pour plan de maison plain pied 4 chambres
4 réponses Forum Plans de maisons -
Achat maison mitoyenne pour agrandissement
12 réponses Forum Plans de maisons -
plan maison plein pied simple avec 4 chambres
49 réponses Forum Plans de maisons -
Problème de conflit de porte.
12 réponses Forum Plans de maisons -
Avis sur plan de maison 200m2 avec 6 chambres
23 réponses Forum Plans de maisons -
Garage et combles aménageables : annexe ou partie intégrante du bâtiment principal ?
12 réponses Forum Plans de maisons -
plan maison 5.5m sur 16m/ 3 chambres
37 réponses Forum Plans de maisons -
Pouvez-vous m'aider à choisir la bonne orientation
12 réponses Forum Plans de maisons
Résolu -
Avis sur plan maison plain pied 4 chambres (page4)
67 réponses Forum Plans de maisons




Nouveau sujet
Répondre








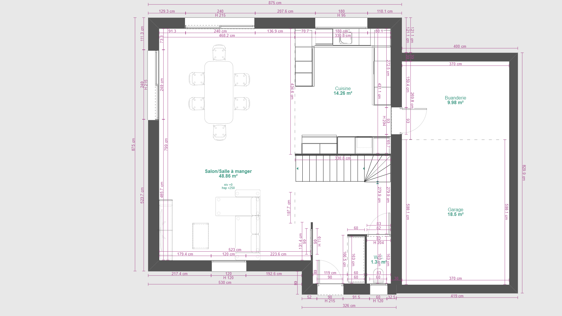
[url=https://files.forumconstruire.com/images/ca/capture-cran-2022-06-25-jpg-stor-62b6a23a3891e524880.jpg]
)


Edité 1 fois, la dernière fois il y a +3 ans.
Peut-être est-ce dû au fait qu'elle sont comme ça sur la maison catalogue.

(je revois le constructeur demain soir, nous sommes censé retravailler/valider les plans avant devis). C'est surtout que nous avions imaginé avoir une vue sur la grande partie du jardin depuis les chambres..
C'est intéressant aussi !




Autres discussions sur ce sujet :
Résolu