Retour
Menu utilisateur
Menu

Demande d'avis sur plan de maison R + combles aménagés

Ce sujet comporte 13 messages et a été affiché 220 fois
Nouveau sujetPicto plus RépondrePicto reply Picto reply
3
abonnés
surveillent ce sujet
 
Env. 10 message Nord
Bonjour à tous,

Après avoir écumé les annonces dans l’ancien sans trouver notre bonheur, nous nous lançons finalement dans un projet de construction, suite à la découverte d’un terrain qui nous plaît beaucoup dans les environs.

Nous avons pour le moment consulté deux constructeurs et un maître d’œuvre pour la réalisation des plans. Au fil des rendez-vous, et en compilant les bonnes idées des uns et des autres, nous arrivons à une configuration qui nous conviendrait… sur le papier ! (Les surfaces restant encore ajustables.)

Nous aimerions recueillir l’avis de personnes ayant sans doute plus d’expérience que nous sur l’aménagement d’une maison : c’est l’objet de ce premier post 🙂

Implantation

Maison en second rang, orientée sud / sud-est, avec le garage à l’ouest afin de limiter le vis-à-vis avec le jardin des voisins.
Initialement très attirés par une orientation sud / sud-ouest, souvent plébiscitée, nous craignons finalement que de grandes ouvertures plein sud-ouest n’entraînent une surchauffe en été.

Rez-de-chaussée

La porte d’entrée débouche sur un hall avec l’escalier à droite et un vestiaire à gauche.
Un couloir dessert ensuite :

un WC,

une salle de douche,

un bureau / salle TV (pouvant devenir une chambre ultérieurement),

une salle de sport avec baie coulissante donnant sur l’extérieur.

Cette organisation nous plaît particulièrement car, si le bureau devenait une chambre, cet ensemble formerait un îlot bien distinct de la pièce de vie.

Passé le hall, on accède à la pièce de vie principale (salon / salle à manger / cuisine), conçue comme un grand volume ouvert sur le jardin grâce à deux larges baies coulissantes.

La cuisine avec îlot, disposée en longueur, bénéficie d’une lumière traversante, avec une baie fixe en extrémité permettant de capter la luminosité de l’ouest en fin de journée, notamment en été.

Une porte coulissante donne accès à une terrasse couverte. Une porte discrète depuis la cuisine mène au cellier / buanderie, puis au garage (dont la surface est volontairement généreuse).

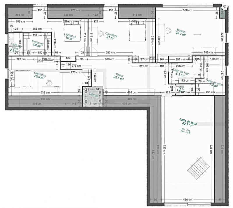
Étage

L’escalier arrive sur un palier avec rangements, desservant trois chambres, dont une suite parentale avec dressing et salle de bain. Deux chiens-assis donnent sur le jardin.

Le bureau est situé côté sud-ouest, avec un pignon vitré ouvrant également sur le jardin.

La salle de bain est organisée en deux espaces séparés par une porte coulissante :

un premier espace avec meuble vasque et une trappe à linge sale (élément très important pour nous 😊) donnant directement sur la buanderie du rez-de-chaussée ;

un second espace accueillant la baignoire et la douche.

Un WC indépendant ainsi qu’une salle de jeux située au-dessus du garage complètent l’étage.


Merci d’avance pour vos remarques et vos conseils !

Paul


Suggestion de présentation




Implantation


Rez-de-chaussée




Etage






 
Messages : Env. 10
Dept : Nord
Ancienneté : + de 6 mois
 
Avez-vous jeté un coup d'oeil à la section "plans de maison" ?

Il y a plusieurs centaines de plans pour trouver des idées, classés par taille, forme, etc ... Vous pouvez même avoir pour chaque plan un budget de construction estimatif...

C'est ici : //www.forumconstruire.com/plan_maison/
 
Membre super utile Env. 1000 message Haute Garonne
Bonjour,

En calculant très très très rapidement je vois une maison de plus 250 m² habitable ce qui en fait une maison très "premium" ce n'est pas anodin (sachant que la surface moyenne d'une construction de maison est de 114 m²)

Pour un projet de plus de 150 m², le recours à un architecte est obligatoire donc vous pouvez abandonner la conception de vos constructeurs et maître d'œuvres

L'auteur de la signature de complaisance et les bénéficiaires du permis de construire (VOUS) sont susceptibles d'être traduits devant le Tribunal Correctionnel pour faux et usage de faux et peuvent encourir jusqu'à 3 ans d'emprisonnement et 45 000€ d'amende.



Pourquoi faire une maison si grande et faire appel a des gens qui ont seulement la compétence de faire des maisons bas de gamme et marger le plus possible sur le dos des clients ? (constructeur) vous pouvez regarder ce sujet https://www.forumconstruire.com/construire/topic-499658-demande-avis-plan-maison-ccmi.php#6546778 où la majorité des professionnels du bâtiment ne recommande JAMAIS un constructeur (même pour une maison bas de gamme) 

Petit rappel : 

1) Un architecte est un maître d'œuvre

2) Le recours a un architecte est obligatoire pour votre projet (de l'esquisse jusqu'au dépôt du permis de construire à minima) ; c'est à dire, un contrat entre VOUS et l'ARCHITECTE, avez des réunions régulières pour définir au mieux votre projet

3) SI vous avez un bon feeling et de bonnes recommandations d'un maître d'oeuvre, il peut CONTINUER la mission de l'architecte (qui est aussi maître d'oeuvre), dans ce cas, vous pouvez travailler premièrement avec l'architecte puis avec le maître d'oeuvre (en tout légalité) 

Bref, vu la crise du secteur immobilier, aucun de tous les professionnels que vous avez contacté vous a prévenu d'illégalité dans laquelle vous êtes en train de vous mettre. 

Vous faites une future top maison, donnez lui de la plus-value en la faisant concevoir par un architecte et non par un lotisseur, cela peut qu'être mieux à vivre et à la revente ! et parfois construire légèrement moins grand pour faire mieux agencé, mieux pensé et des matériaux de qualités c'est mieux non ? 

La surface ne veut strictement rien dire, ce petit exemple d'école : 
Entre vivre dans une maison de 200m x 1m ? (200m²) ou dans une maison de 15m x 10m ? (150m²) 
LaTeam, Architecte HMONP
Picto recompense Membre super utile
Messages : Env. 1000
Dept : Haute Garonne
Ancienneté : + de 3 ans
 
Env. 10 message Nord
LaTeam Bonjour,
Merci pour votre commentaire, qui apporte effectivement matière à réflexion ?

Nous n'avons pas retenu les premiers constructeurs rencontrés, ni ciblé ceux positionnés uniquement sur de la grande série à bas coût. Nous avons conscience, à la lecture de nombreux retours sur ce forum, que certains acteurs posent problème, sans pour autant considérer que tous les constructeurs soient à mettre dans le même panier.

Il nous en reste aujourd'hui deux dans notre sélection :

l'un, bien réputé dans la région, spécialisé dans le sur-mesure haut de gamme (<150 m²) et disposant d'architectes intégrés ;

l'autre, plus généraliste, mais dont la structure et la réputation nous semblent solides (avance de 95 % des coûts, règlement en fin de chantier).

Des amis ont réalisé leur projet avec chacun de ces constructeurs et nous ont fait des retours globalement positifs.

Par ailleurs, notre banque nous a recommandé, dans une optique de sécurisation du projet, de privilégier un CCMI (délais, garanties, assurances). Nous avons également pris connaissance de témoignages de projets ayant rencontré de fortes difficultés avec des maîtres d'oeuvre ou des artisans peu scrupuleux. Cela ne nous dispense évidemment pas d'être très vigilants sur le contenu du contrat que nous signerons.

Concernant la surface, elle peut paraître importante pour certains et plus modeste pour d'autres. Nous avons simplement fait le choix d'une maison spacieuse et bien aménagée, dans la limite de notre budget, en connaissance des coûts associés.

Enfin, nous sommes conscients du rôle fondamental de l'architecte sur les aspects structurels, réglementaires et normatifs. Cela n'empêche pas, selon nous, que les futurs occupants puissent avoir des envies ou des idées d'aménagement : il s'agit avant tout de notre cadre de vie.

Nous constatons que les demandes de conseils sur l'aménagement suscitent parfois des réponses assez tranchées ("voir un architecte", "trop de superflu"), en particulier sur les projets de maisons un peu plus grandes que la moyenne. Nous restons toutefois ouverts aux retours constructifs et argumentés, quel que soit le point de vue exprimé Wink
Messages : Env. 10
Dept : Nord
Ancienneté : + de 6 mois
 
Membre super utile Env. 1000 message Haute Garonne
polo59480 a écrit:LaTeam Bonjour,
Merci pour votre commentaire, qui apporte effectivement matière à réflexion ?

Nous n'avons pas retenu les premiers constructeurs rencontrés, ni ciblé ceux positionnés uniquement sur de la grande série à bas coût. Nous avons conscience, à la lecture de nombreux retours sur ce forum, que certains acteurs posent problème, sans pour autant considérer que tous les constructeurs soient à mettre dans le même panier.

Il nous en reste aujourd'hui deux dans notre sélection :

l'un, bien réputé dans la région, spécialisé dans le sur-mesure haut de gamme (<150 m²) et disposant d'architectes intégrés ;

l'autre, plus généraliste, mais dont la structure et la réputation nous semblent solides (avance de 95 % des coûts, règlement en fin de chantier).

Des amis ont réalisé leur projet avec chacun de ces constructeurs et nous ont fait des retours globalement positifs.

Par ailleurs, notre banque nous a recommandé, dans une optique de sécurisation du projet, de privilégier un CCMI (délais, garanties, assurances). Nous avons également pris connaissance de témoignages de projets ayant rencontré de fortes difficultés avec des maîtres d'oeuvre ou des artisans peu scrupuleux. Cela ne nous dispense évidemment pas d'être très vigilants sur le contenu du contrat que nous signerons.

Concernant la surface, elle peut paraître importante pour certains et plus modeste pour d'autres. Nous avons simplement fait le choix d'une maison spacieuse et bien aménagée, dans la limite de notre budget, en connaissance des coûts associés.

Enfin, nous sommes conscients du rôle fondamental de l'architecte sur les aspects structurels, réglementaires et normatifs. Cela n'empêche pas, selon nous, que les futurs occupants puissent avoir des envies ou des idées d'aménagement : il s'agit avant tout de notre cadre de vie.

Nous constatons que les demandes de conseils sur l'aménagement suscitent parfois des réponses assez tranchées ("voir un architecte", "trop de superflu"), en particulier sur les projets de maisons de grande taille. Nous restons toutefois ouverts aux retours constructifs et argumentés, quel que soit le point de vue exprimé Wink


Je vais essayer de vous répondre au mieux :

l'un, bien réputé dans la région, spécialisé dans le sur-mesure haut de gamme (<150 m²) et disposant d'architectes intégrés ;

Cela n'existe pas ! 
L’architecte est tenu par une indépendance absolue (loi de 1977 + code de déontologie). Le fameux "architecte intégré" c'est l'ami architecte qui fait une signature de complaisance qu'on vous facture entre 500 et 2000e 
c'est illégal ! 

l'autre, plus généraliste, mais dont la structure et la réputation nous semblent solides (avance de 95 % des coûts, règlement en fin de chantier).

Vous pouvez faire appel a un CCMI avec fourniture de plan par le client (plan conçu par un architecte qui aura suivi de l'esquisse au dépôt de permis de construire) 



Par ailleurs, notre banque nous a recommandé, dans une optique de sécurisation du projet, de privilégier un CCMI (délais, garanties, assurances). Nous avons également pris connaissance de témoignages de projets ayant rencontré de fortes difficultés avec des maîtres d'oeuvre ou des artisans peu scrupuleux. Cela ne nous dispense évidemment pas d'être très vigilants sur le contenu du contrat que nous signerons.

"Des artisans peu scrupuleux" ; un CMI il ne construit pas par le saint esprit ? il construit avec des artisans MAIS encore pire, vous ne connaissez ni les artisans que le CMI va choisir, ni le montant qu'ils vont être rémunéré tout est "OPAQUE".

Tandis qu'avec un architecte ou un maître d'oeuvre, vous signez des contrat avec les artisans, en étant aidé et aiguillé par l'architecte / MOE, vous pouvez comparer 2-4 devis, éloigner le moins-disants (le moins chère mais peut être le moins qualitatif) , vous avez un vrai pouvoir sur la qualité et le détails des prestations ! 

Vous pouvez demander à vos amis les entreprises qui sont intervenues sur leur chantier, pour que l'architecte / MOE les consulte ! 

Le CMI prendra celui avec qui il est en business et où ils pourront marger le plus possible.

Malheureusement, les banques favorisent les CCMI, en même temps ils ont raison, ils n'y habiteront pas et ils ont plus (+) de garanties contractuelles avec un CMI. Ils ne sont pas là pour faire des maisons mais pour toucher des mensualités sans risques.

Concernant la surface, elle peut paraître importante pour certains et plus modeste pour d'autres. Nous avons simplement fait le choix d'une maison spacieuse et bien aménagée, dans la limite de notre budget, en connaissance des coûts associés.

Vous avez totalement raison ! (ce n'était pas un reproche) pour le bien aménagée on repassera... 

Enfin, nous sommes conscients du rôle fondamental de l'architecte sur les aspects structurels, réglementaires et normatifs. Cela n'empêche pas, selon nous, que les futurs occupants puissent avoir des envies ou des idées d'aménagement : il s'agit avant tout de notre cadre de vie.

Je pense que vous avez aucune conscience que vous ne connaissez pas le métier d'architecte, nous ne sommes pas là pour faire la maison de NOS rêves mais bien pour réaliser la maison de VOS rêves, de votre cadre de vie, de vos envies et de vos idées d'aménagements avec notre devoir de conseil. C'est bien sur ce point qui différencie énormément le métier de constructeur et d'architecte, l'un VEND des maisons, tandis que l'architecte CONCOIT des maisons. Nous travaillons de multiples versions avec le client, pour comprendre son cadre de vie, des versions que nous présentons, jusqu'à aboutir à LA maison idéale, parfois il y a une dizaine de versions différentes car c'est un long processus entre fonctionnalité, qualité de vie, volumétrie, esthétisme, réglementation etc. 
On fait de la prestation de service, on est là à votre service. Tout est transparent.
Le constructeur vous vend une maison, vous contractualisez rapidement une maison sur laquelle vous êtes engagez sur des plans assez sommaires, sans pouvoir les modifier sans débourser des sommes énormes car c'est le constructeur qui vous tient et non l'inverse. Le constructeur a aucune raison lors du suivi de chantier de déceler les problèmes car il perdra du temps et de l'argent ! 

Petit rappel, 
au cas où, il n'existe pas "d'architecte d'extérieur", le titre "Architecte" est une profession réglementée au même titre que les avocats ou médecins. Le métier d'architecte d'intérieur ne fait pas parti de cette profession réglementée et devrait s'appeler "designer d'espace", "décorateur" ou autre. 

Un architecte conçoit un projet de A à Z selon le cahier des charges de son client
Il suit le projet jusqu'à la livraison
Il défend vos intérêts au près des artisans, il défend le projet que vous avez construit "ensemble"

Nous constatons que les demandes de conseils sur l'aménagement suscitent parfois des réponses assez tranchées ("voir un architecte", "trop de superflu"), en particulier sur les projets de maisons de grande taille. Nous restons toutefois ouverts aux retours constructifs et argumentés, quel que soit le point de vue exprimé Wink

Personnellement, 
J'ai du mal à analyser un plan qui est hors la loi et qui relève du pénal...
Je serai curieux de connaître les différentes démarches pour arriver à ce plan ?

Comme vous le dites, vous connaissez peu ce milieu donc j'espère vous avoir aidé

Vous avez un super projet (pas un super plan) c'est dommage de passer à coté pour aucune raison valable...
LaTeam, Architecte HMONP
Picto recompense Membre super utile
Messages : Env. 1000
Dept : Haute Garonne
Ancienneté : + de 3 ans
 
Membre utile Env. 700 message Royan (17)
polo59480 bonjour
Environ 250 m² c'est vraiment une belle surface.
Sans parler de l'aspect extérieur qui est propre à chacun, l'intérieur me fait frémir.
Je ne connais pas votre demande, votre cahier des charges, mais celui qui propose ces plans n'est pas un concepteur, ces plans sont à revoir.

Des surfaces importantes de dégagements, de palier, des recoins dans tous les sens, difficile d'exploiter et d'aménager.
Eviter les pièces aveugles, mettre en valeur le hall avec un bel escalier.
Rien que l'escalier, conforme avec la hauteur à franchir ?
Le bureau qui fait salle de télé qui peut devenir une chambre pas toujours réaliste.

Si je compte bien et d'après la désignation des pièces sur les plans il y a :
3 chambres à l'étage, 2 bureaux (RdC et étage), 2 salles de jeux (RdC et étage), 2 salle de bain (RdC et étage), 1 salle d'eau à l'étage.

Comme dirait ma mère c'est un plan biscornu.
A l'étage, les occupants des chambres traversent le palier pour aller aux toilettes et dans la salle de bain, pas très pratique.
Un buanderie de 20 m² mais pas de cellier ?
Picto recompense Membre utile
Messages : Env. 700
De : Royan (17)
Ancienneté : + de 11 mois
 
Env. 10 message Nord
 y
Messages : Env. 10
Dept : Nord
Ancienneté : + de 6 mois
 
Env. 10 message Nord
LaTeam À la lecture de votre message et au regard de votre signature, je comprends mieux votre position très critique vis-à-vis des constructeurs. Il est légitime de défendre son métier et son mode d'exercice. Il l'est tout autant d'admettre que certaines personnes puissent faire un choix différent, sans que cela relève de l'inconscience.
Comme dans tous les corps de métier, y compris les professions réglementées, il existe des pratiques plus ou moins vertueuses. Les architectes n'y échappent pas davantage que les constructeurs, les maîtres d'oeuvre ou les artisans. L'existence de dérives isolées ne permet pas, selon nous, de disqualifier un modèle dans son ensemble.
Il est exact qu'en CCMI, le client n'a pas la main sur le choix des artisans. Cela pose question, certes, mais il n'est pas évident qu'un artisan recommandé par un architecte ou un maître d'oeuvre offre systématiquement plus de garanties. Sur quels critères objectifs le client non professionnel peut-il juger à l'avance de la qualité réelle de l'exécution ? Et quels recours effectifs en cas de désordre, lorsque plusieurs intervenants se renvoient la responsabilité ?
C'est précisément pour répondre à ces problématiques que le CCMI nous semble pertinent : prix global et forfaitaire connu dès le départ, délais encadrés avec pénalités, responsabilité clairement identifiée, garanties légales, et possibilité d'émettre des réserves en cas de non-conformité ou de malfaçon. Ce cadre sécurisant explique aussi pourquoi il est largement plébiscité par les établissements bancaires.
Nous sommes parfaitement conscients de ne pas être experts en architecture ou en construction, et c'est précisément pour cette raison que nous avons sollicité des avis, initialement sur des simples questions d'aménagement intérieur.
Si je vous parlais de mon travail, vos connaissances ou votre compréhension s'arrêteraient peut être dès la deuxième phrase. Je ne vous donnerais par pour autant de leçon de morale en vous disant que vous êtes inconscient.
Enfin, il nous semble peu crédible qu'un constructeur implanté depuis plus de vingt ans dans une région puisse durablement prospérer en livrant des maisons non conformes ou en trompant systématiquement ses clients. Les pratiques déviantes finissent toujours par se savoir.
Pour conclure, il est parfaitement légal pour un constructeur d'employer des architectes, comme d'autres entreprises emploient des avocats ou des médecins, chacun restant soumis à ses obligations professionnelles. En cas de manquement grave, la responsabilité incombe en premier lieu aux professionnels concernés. Le particulier de bonne foi n'a aucun risque d'être inquiété, sauf participation volontaire à une fraude.
Nous restons ouverts aux échanges constructifs et argumentés sur le fond du projet, qui était l'objet initial de notre démarche.
Bonne soirée Wink
Messages : Env. 10
Dept : Nord
Ancienneté : + de 6 mois
 
Env. 10 message Nord
Ugh17 Bonsoir, merci pour votre réponse.

Le plan du rez-de-chaussée provient d'un constructeur, à quelques ajustements près.
L'étage, en revanche, a été entièrement retravaillé par nos soins suite à une réorientation du projet. Nous sommes conscients qu'il reste perfectible et souhaitions avant tout disposer d'une base cohérente avant de retourner consulter un professionnel.

La pièce indiquée comme « salle de jeux » au rez-de-chaussée correspond en réalité à une salle de sport (je n'avais pas remarqué qu'il était possible de modifier l'intitulé des pièces). De la même manière, le « bureau » est destiné à être une salle TV.
Le cellier est dans la même pièce que la buanderie.

L'agencement de l'étage peut effectivement paraître irrégulier. Nous avons volontairement cherché à casser les lignes droites afin de maximiser les possibilités de rangements intégrés. C'est une chose à éviter ?

L'éloignement des WC par rapport aux chambres est souhaité : quelques mètres supplémentaires ne nous posent pas de problème si cela permet de préserver davantage d'intimité, notamment la nuit.
Messages : Env. 10
Dept : Nord
Ancienneté : + de 6 mois
 
Membre utile Env. 700 message Royan (17)
polo59480
Ok pour la désignation des pièces.
Casser volontairement les lignes droites pourquoi pas mais ici il y a des recoins dans tous les sens, certainement possible de trouver un juste milieu.
Eloigner les pièces d'eau des chambres c'est judicieux mais traverser un palier de 22 m² pour aller se laver est-ce judicieux et confortable ?
En principe on évite de mettre une salle de bain à l'opposer des chambres.
D'ailleurs ce palier étant d'une bonne surface il sera utilisé pour une activité ? Il est vraiment utile pour vous ce palier ?
Picto recompense Membre utile
Messages : Env. 700
De : Royan (17)
Ancienneté : + de 11 mois
 
Membre ultra utile Env. 10000 message Paris
Bonjour
polo59480 , vous avez omis d'indiquer la ligne de hsp 180 cm, sur votre plan d'étage.
Quand on a un marteau dans la tête, on voit tous les problèmes sous la forme d'un clou.
Picto recompense Membre ultra utile
Messages : Env. 10000
Dept : Paris
Ancienneté : + de 7 ans
 
Membre super utile Env. 1000 message Haute Garonne
polo59480

Il est interdit d'exercer une profession d architecte au sein d'un cmi, ils peuvent recruter des diplômés en architecture, des diplômés en pâtisserie,  ils ne peuvent pas faire la conception et déposer le permis de construire avec leur société car ce n'est pas une société d'architecture, c'est très réglementée, vous faites de la signature de complaisance.
Ils ne peuvent pas s'associer avec une société d'architecture non plus.
C'est mon devoir sur un forum d'alerter sur une pratique répréhensible, vous êtes libres d'enfreindre la loi mais ne me dites pas que c'est légal...

Vous vous doutez bien que les big promoteur comme Nexity, Bouygyes ou autres se passeraient bien de faire appel à des cabinets d'architecture pour faire leur projet et faire tout en « interne » mais idem ils ne peuvent pas.

Si le cadre du CCMI vous convient, il est parfaitement possible d'y avoir recours, vous faites un top projet avec un architecte jusqu'au dépôt du PC et vous fournissez le plan au CMI

Je ne sais pas ce qui vous bloque à passer avec un architecte pour concevoir votre maison idéale, pour économiser 5-10k ? (Juste la phase de conception-PC)

Donc vous faites confiances à un sous-traitant choisi par un constructeur sans avoir votre mot à dire mais pas à un architecte / MOE qui établie un appel d'offres entre plusieurs entreprises ? (Ou vous pouvez consulter votre ami, famille, entreprise qui a bien bossé dans votre entourage, celles recommandée par votre archi) et qui vous présente, analyse chacun des devis ?

Bref j'entends que ce CCMI vous rassure, qui a beaucoup de points forts et il est possible d'y avoir recours comme expliqué ci dessus

N'oubliez pas d'adhérer à l'AAMOI



Les constructeurs ne sont pas mes concurrents vu que je suis chef de projet sur des dossiers publics (sportif, culturel, tertiaire et industriel), j'ai rien contre eux, ils profitent du système et ils ont raison
Je vous parle de mon métier car votre projet est soumis au recours obligatoire à un architecte, c'est vous le signataire et bénéficiaire du cerfa, ce n'est pas votre constructeur. Le vôtre, doit être très intéressant mais peut être pas très utile pour un sujet de construction de maison individuelle...

Le système :
La loi qui autorise la construction de maison individuelle de moins de 150m2 sans architecte
Les signatures de complaisances et les archi-constructeurs véreux qui fraudent

Seulement 7% des maisons individuelles sont conçus par des architectes !

Et n'oubliez pas qu'un projet cela vit et évolue jusqu'à la pose de la poignée de porte... la liberté, la flexibilité, l'écoute est primordial lorsqu'on bâti la maison d'une vie (ce qui sera très compliqué en CCMI)

Je m'excuse de vous prendre la tête mais voir notre profession qui se fait bafouer par des gens peu scrupuleux (vos constructeurs et l'architecte magouilleur) cela me désole.

Lorsque vous me direz « on prend le risque de frauder et de passer 100% avec CMI » on pourra enfin analyser ces plans ! 

Plans, qui pour une maison de 250-300m2 ne présente que très peu de qualité, un étage complètement à revoir, un RDC complètement basique sans réel intérêt ou point fort 
LaTeam, Architecte HMONP
Picto recompense Membre super utile
Messages : Env. 1000
Dept : Haute Garonne
Ancienneté : + de 3 ans
 
Env. 6000 message Lourdes 65 (65)
Bonjour,
Tombé par hasard sur la rubrique "plans de maisons", je me permet ceci :
En imaginant la suite parentale avec une salle de bain, ne serait-il pas confortable de placer une salle d'eau dans chacune des chambres ?

J'aime beaucoup la terrasse que j'appelle préau.

Avez vous pensé à créer un récit de construction sur le forum ?
Modeler le terrain au cm tout en préservant la nature
Actuellement en ligne !
Messages : Env. 6000
De : Lourdes 65 (65)
Ancienneté : + de 14 ans
 
Membre utile Env. 700 message Royan (17)
polo59480
Faire appel à un Architecte pour la réalisation des plans serait préférable.
La conception et l'aspect extérieur sera soigné et il vous proposera un intérieur certainement différent et mieux conçu, espace et volume.

J'ai réalisé des plans en conservant la structure et ses dimensions tout en restant sensiblement dans le même esprit que vos plans et la même logique.
Si cela vous intéresse ou pour avoir d'autre idées je peux vous les transmettre ?
Picto recompense Membre utile
Messages : Env. 700
De : Royan (17)
Ancienneté : + de 11 mois
En cache depuis le dimanche 12 avril 2026 à 16h52
Ce sujet vous a-t-il aidé ?
0
0

Picto forum C'est intéressant aussi !

Devis plan de maisonArtisan
Devis plan de maison
Demandez, en 5 minutes, 3 devis comparatifs aux professionnels de votre région. Gratuit et sans engagement.
25 erreurs à éviter dans son plan de maison
25 erreurs à éviter dans son plan de maison
Les guides vous aident à y voir plus clair sur la construction.
Photos de plans de maison
Photos de plans de maison
Picorez des idées en parcourant les photos des constructions des autres !
Tour de France : 10 constructions typiques de nos régions (revisitées ou non)
Tour de France : 10 constructions typiques de nos régions ...
L'équipe de Forum Construire sélectionne pour vous les plus belles photos des membres et du web.
3
abonnés
surveillent ce sujet

Picto forum Autres discussions sur ce sujet :

Voir