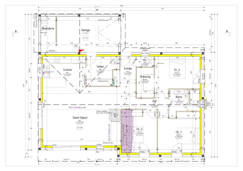
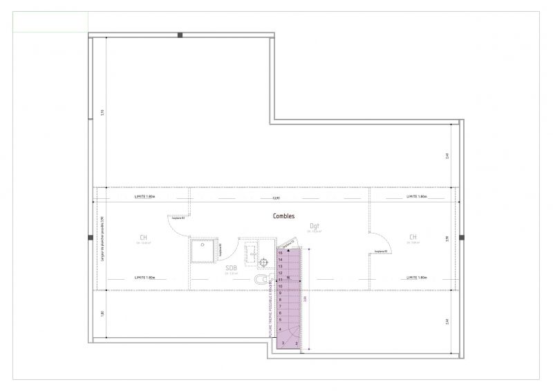
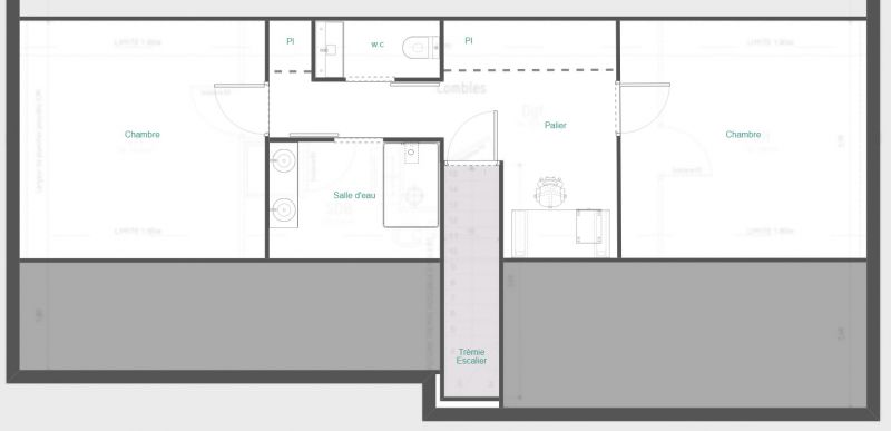
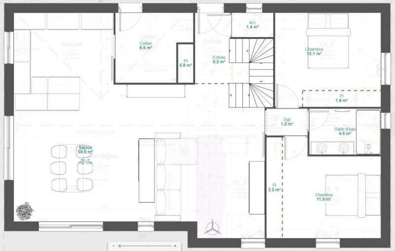
Avis sur plan pour aménagement de combles
Ce sujet comporte 37 messages et a été affiché 315 fois
Nouveau sujet
Répondre
|
3 abonnés surveillent ce sujet |
Membre super utileActuellement en ligne !
Membre utile
Membre utile
Membre utile
Membre utile
Membre utile
Membre utile
Membre utile
Membre utile
Membre utile
Membre utile
Membre utile
Membre utile
Membre utile
Membre utile
Membre utile
Membre utile
Membre utile
Membre utile
Membre utile
Membre utile
Membre utile
Membre utile
Membre utile
Membre utile
Membre utileEn cache depuis le lundi 13 avril 2026 à 14h04
Ce sujet vous a-t-il aidé ?
1
Votez !
0
Votez !
C'est intéressant aussi !
Devis plan de maison
Demandez, en 5 minutes, 3 devis comparatifs aux professionnels de votre région. Gratuit et sans engagement.
Demandez, en 5 minutes, 3 devis comparatifs aux professionnels de votre région. Gratuit et sans engagement.
25 erreurs à éviter dans son plan de maison
Les guides vous aident à y voir plus clair sur la construction.
Les guides vous aident à y voir plus clair sur la construction.
Les 10 maisons les plus extraordinaires des membres ...
L'équipe de Forum Construire sélectionne pour vous les plus belles photos des membres et du web.
L'équipe de Forum Construire sélectionne pour vous les plus belles photos des membres et du web.
3
abonnés
surveillent ce sujet
surveillent ce sujet
Autres discussions sur ce sujet :
-
Besoin d avis sur plan maison r+combles 146m2 avec sous sol ; -)
159 réponses Forum Plans de maisons -
Pourriez-vous me fournir un avis sur ce plan ?
36 réponses Forum Plans de maisons -
Avis aménagement/plan des combles ~88m2
98 réponses Forum Plans de maisons -
Aménagement de l’espace parentale
36 réponses Forum Plans de maisons -
plan 104M² 4 chambres combles aménageables
293 réponses Forum Plans de maisons -
Demande d'Avis sur plan de Maison R+1+combles
193 réponses Forum Plans de maisons -
Aidez nous à améliorer notre plan.
36 réponses Forum Plans de maisons -
Aide logiciel pour plan de combles atypiques
3 réponses Forum Plans de maisons -
Aide pour un terrain tout en longueur
36 réponses Forum Plans de maisons




Nouveau sujet
Répondre







C'est intéressant aussi !




Autres discussions sur ce sujet :