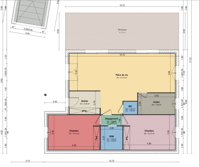
Avis plan maison de plain pied 95m²
Ce sujet comporte 104 messages et a été affiché 1.401 fois
Nouveau sujet
Répondre
|
7 abonnés surveillent ce sujet |
Membre ultra utile
Membre utile
Membre ultra utile
Membre utile
Membre ultra utile
Membre utile
Membre utile
Membre utile
Membre utile
Membre utile
Membre ultra utile
Membre super utile
Membre utile
Membre ultra utile
Membre utile
Membre utile
Membre ultra utile
Membre super utile
Membre ultra utile
Membre utile
Membre ultra utile
Membre ultra utile
Membre utile
Membre ultra utile
Membre utile
Membre ultra utile
Membre ultra utile
Membre utile
Membre ultra utile
Membre utile
Membre utile
Membre super utile
Membre ultra utile
Membre ultra utileEn cache depuis le mardi 28 avril 2026 à 15h38
Ce sujet vous a-t-il aidé ?
0
Votez !
0
Votez !
C'est intéressant aussi !
Devis plan de maison
Demandez, en 5 minutes, 3 devis comparatifs aux professionnels de votre région. Gratuit et sans engagement.
Demandez, en 5 minutes, 3 devis comparatifs aux professionnels de votre région. Gratuit et sans engagement.
25 erreurs à éviter dans son plan de maison
Les guides vous aident à y voir plus clair sur la construction.
Les guides vous aident à y voir plus clair sur la construction.
Les 10 maisons les plus extraordinaires des membres ...
L'équipe de Forum Construire sélectionne pour vous les plus belles photos des membres et du web.
L'équipe de Forum Construire sélectionne pour vous les plus belles photos des membres et du web.
7
abonnés
surveillent ce sujet
surveillent ce sujet
Autres discussions sur ce sujet :
-
Projet auto-construction maison plain pied 120m carrée
103 réponses Forum Plans de maisons -
Avis plan maison plain pied 112m2 sur terrain en pente 40%
553 réponses Forum Plans de maisons
Résolu -
Avis/échanges plan maison plain-pied 3 chambres sur parcelle difficile
57 réponses Forum Plans de maisons -
plan plain pied 115m2 + double garage
35 réponses Forum Plans de maisons -
Avis plans Maison Sur Terrain Angle Lotissement Orienté Nord/Nord-Ouest
106 réponses Forum Plans de maisons -
Vos suggestions pour améliorer et optimiser plan Maison de plain-pied
37 réponses Forum Plans de maisons -
Ultime vérification : des remarques/conseils sur ce plan 180m2 de plain-pied ?
43 réponses Forum Plans de maisons -
[
Bonne idée] Placard et rangements obligatoires dans l'entrée!71 réponses Forum Plans de maisons -
Avis plans maison 6 mètres de façade
91 réponses Forum Plans de maisons




Nouveau sujet
Répondre









Edité 1 fois, la dernière fois il y a +6 mois.


C'est intéressant aussi !




Autres discussions sur ce sujet :
Résolu