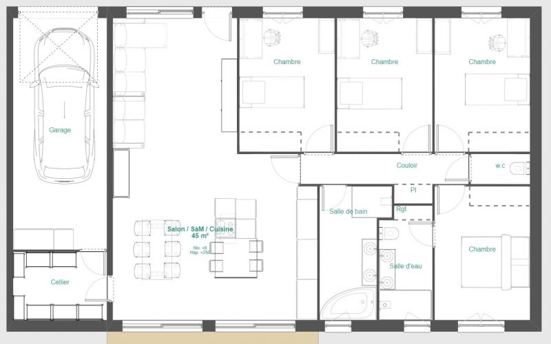
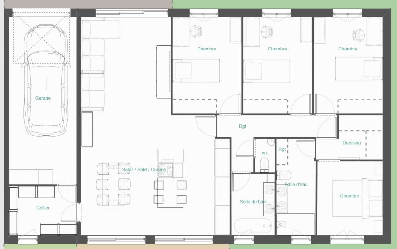
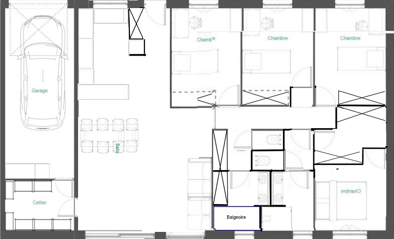
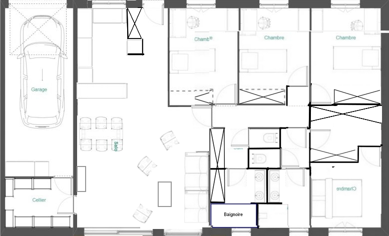
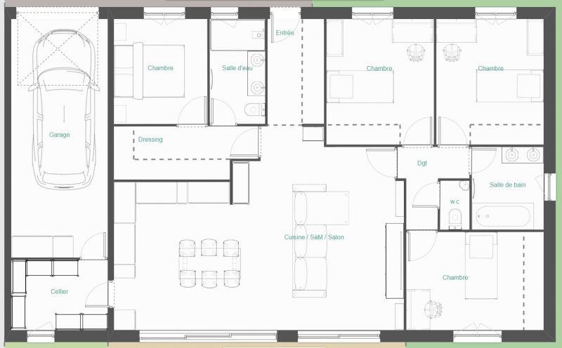
Je souhaite avoir des avis sur le plan de ma maison
Ce sujet comporte 59 messages et a été affiché 454 fois
Nouveau sujet
Répondre
|
5 abonnés surveillent ce sujet |
Membre super utile
Membre utile
Membre utile
Membre utile
Membre super utile
Membre utile
Membre utile
Membre utile
Membre utile
Membre utile
Membre utile
Membre utile
Membre utile
Membre utile
Membre utile
Membre utile
Membre utile
Membre utile
Membre utile
Membre utile
Membre utile
Membre utile
Membre utile
Membre utile
Membre utile
Membre super utile
Membre utile
Membre super utile
Membre utile
Membre utile
Membre utile
Membre super utile
Membre utile
Membre utile
Membre utileEn cache depuis avant-hier à 10h19
Ce sujet vous a-t-il aidé ?
0
Votez !
0
Votez !
C'est intéressant aussi !
Devis plan de maison
Demandez, en 5 minutes, 3 devis comparatifs aux professionnels de votre région. Gratuit et sans engagement.
Demandez, en 5 minutes, 3 devis comparatifs aux professionnels de votre région. Gratuit et sans engagement.
25 erreurs à éviter dans son plan de maison
Les guides vous aident à y voir plus clair sur la construction.
Les guides vous aident à y voir plus clair sur la construction.
Tour de France : 10 constructions typiques de nos régions ...
L'équipe de Forum Construire sélectionne pour vous les plus belles photos des membres et du web.
L'équipe de Forum Construire sélectionne pour vous les plus belles photos des membres et du web.
5
abonnés
surveillent ce sujet
surveillent ce sujet
Autres discussions sur ce sujet :
-
R+1 Cubique env160m² esprit passif/bioclimatique avis
57 réponses Forum Plans de maisons -
Permis de construire refusé, des idées pour un nouveau plan ? (en page 3) merci :-)
58 réponses Forum Plans de maisons -
plan maison plain-pied pmr Puis je avoir votre avis
58 réponses Forum Plans de maisons -
Choix plan de maison
57 réponses Forum Plans de maisons
Résolu -
Avoir un avis sur un plan de maison neuve
58 réponses Forum Plans de maisons -
Pouvez vous me donner votre avis sur mon plan de maison?
57 réponses Forum Plans de maisons -
maison 115 m² / 2 orientations possibles / sud de la France
59 réponses Forum Plans de maisons -
plan de maison R+1 140M2 avec Mezzanine et Baies
59 réponses Forum Plans de maisons -
Avis/échanges plan maison plain-pied 3 chambres sur parcelle difficile
57 réponses Forum Plans de maisons




Nouveau sujet
Répondre






Edité 1 fois, la dernière fois il y a +1 mois.














C'est intéressant aussi !




Autres discussions sur ce sujet :
Résolu