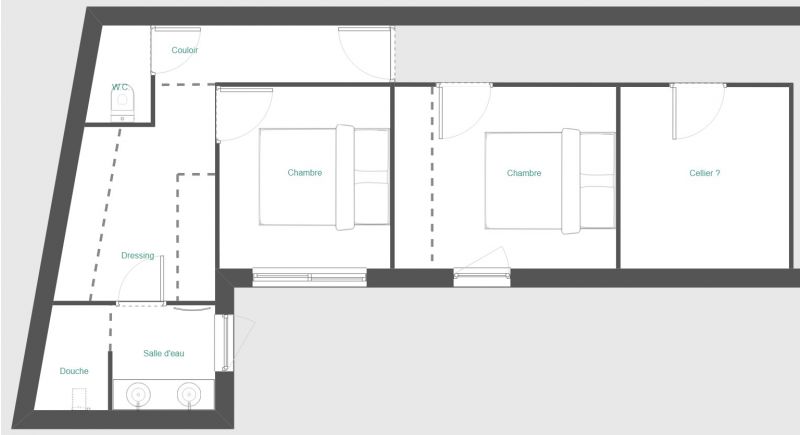
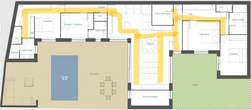
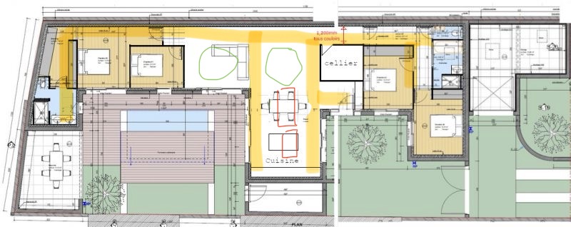
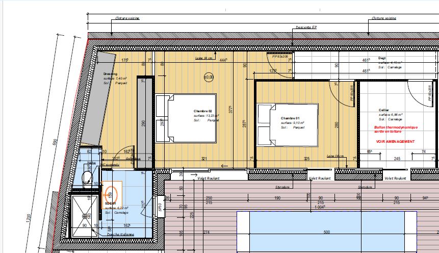
Avis sur plan de la salle de bain
Ce sujet comporte 30 messages et a été affiché 316 fois
Nouveau sujet
Répondre
|
4 abonnés surveillent ce sujet |
Membre super utile
Membre utile
Membre utile
Membre super utile
Membre utile
Membre super utile
Membre utile
Membre super utile
Membre utile
Membre super utile
Membre super utile
Membre super utile
Membre utile
Membre super utile
Membre utile
Membre super utile
Membre utile
Membre super utile
Membre utile
Membre super utile
Membre utile
Membre super utileEn cache depuis le mardi 24 février 2026 à 02h37
Ce sujet vous a-t-il aidé ?
0
Votez !
0
Votez !
C'est intéressant aussi !
Devis plan de maison
Demandez, en 5 minutes, 3 devis comparatifs aux professionnels de votre région. Gratuit et sans engagement.
Demandez, en 5 minutes, 3 devis comparatifs aux professionnels de votre région. Gratuit et sans engagement.
25 erreurs à éviter dans son plan de maison
Les guides vous aident à y voir plus clair sur la construction.
Les guides vous aident à y voir plus clair sur la construction.
Tour de France : 10 constructions typiques de nos régions ...
L'équipe de Forum Construire sélectionne pour vous les plus belles photos des membres et du web.
L'équipe de Forum Construire sélectionne pour vous les plus belles photos des membres et du web.
4
abonnés
surveillent ce sujet
surveillent ce sujet
Autres discussions sur ce sujet :
-
Avis sur plans RE2020 en zone agricole du Pays Basque
28 réponses Forum Plans de maisons -
Avis plan de salle de bain avec douche et baignoire
37 réponses Forum Plans de maisons -
Avis plan de maison plein pied 130 m2
31 réponses Forum Plans de maisons -
Suggestions plan salle de bain
278 réponses Forum Plans de maisons
Résolu -
Avis plan de salle de bain douche + baignoire
35 réponses Forum Plans de maisons
Résolu -
Avis et conseils plans maison R+1 104M2 (57)
22 réponses Forum Plans de maisons -
plan du RDC, disposition de la salle de bain problèmatique
35 réponses Forum Plans de maisons
Résolu -
plan salle de bain vefa - normes handicaps
56 réponses Forum Plans de maisons -
Agencement suite parentale 25m²
23 réponses Forum Plans de maisons




Nouveau sujet
Répondre











Edité 1 fois, la dernière fois il y a +1 mois.
C'est intéressant aussi !




Autres discussions sur ce sujet :
Résolu