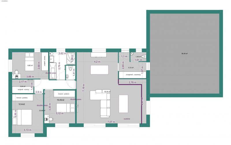
Plan maison 110m²
Ce sujet comporte 28 messages et a été affiché 553 fois
Nouveau sujet
Répondre
|
4 abonnés surveillent ce sujet |
Membre utile
Membre super utile
Membre super utile
Membre ultra utile
Membre utile
Membre utile
Membre utile
Membre super utile
Membre utile
Membre utile
Membre utile
Membre utile
Membre utile
Membre utile
Membre utile
Membre utile
Membre ultra utile
Membre utile
Membre utileEn cache depuis le mardi 27 janvier 2026 à 17h47
Ce sujet vous a-t-il aidé ?
1
Votez !
1
Votez !
C'est intéressant aussi !
Devis plan de maison
Demandez, en 5 minutes, 3 devis comparatifs aux professionnels de votre région. Gratuit et sans engagement.
Demandez, en 5 minutes, 3 devis comparatifs aux professionnels de votre région. Gratuit et sans engagement.
25 erreurs à éviter dans son plan de maison
Les guides vous aident à y voir plus clair sur la construction.
Les guides vous aident à y voir plus clair sur la construction.
Tour de France : 10 constructions typiques de nos régions ...
L'équipe de Forum Construire sélectionne pour vous les plus belles photos des membres et du web.
L'équipe de Forum Construire sélectionne pour vous les plus belles photos des membres et du web.
4
abonnés
surveillent ce sujet
surveillent ce sujet
Autres discussions sur ce sujet :
-
Avis plan maison PP 4 chambres + bureau
15 réponses Forum Plans de maisons
Résolu -
Demande d'avis sur plan de maison R + combles aménagés
12 réponses Forum Plans de maisons -
Besoin d'avis sur les plans de rénovation d'une longère
20 réponses Forum Plans de maisons -
Avis sur plan de maison avec patio
23 réponses Forum Plans de maisons -
Quel aménagement optimal pour un studio semi-enterré de 27m2 ?
20 réponses Forum Plans de maisons
Résolu -
Modifier plan maison 120m2 plein pied
20 réponses Forum Plans de maisons -
Une chambre doit-elle comporter obligatoirement une ouverture (fenêtre) ?
19 réponses Forum Plans de maisons
Résolu -
Creer un box
46 réponses Forum Plans de maisons -
plan maison R+1 150m2 terrain rectangulaire en ville
17 réponses Forum Plans de maisons




Nouveau sujet
Répondre







Edité 1 fois, la dernière fois il y a +8 mois.









C'est intéressant aussi !




Autres discussions sur ce sujet :
Résolu