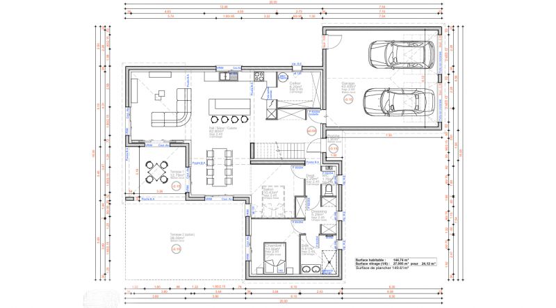
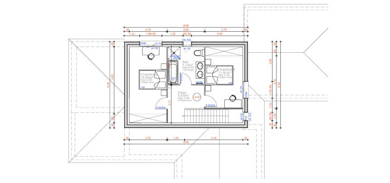
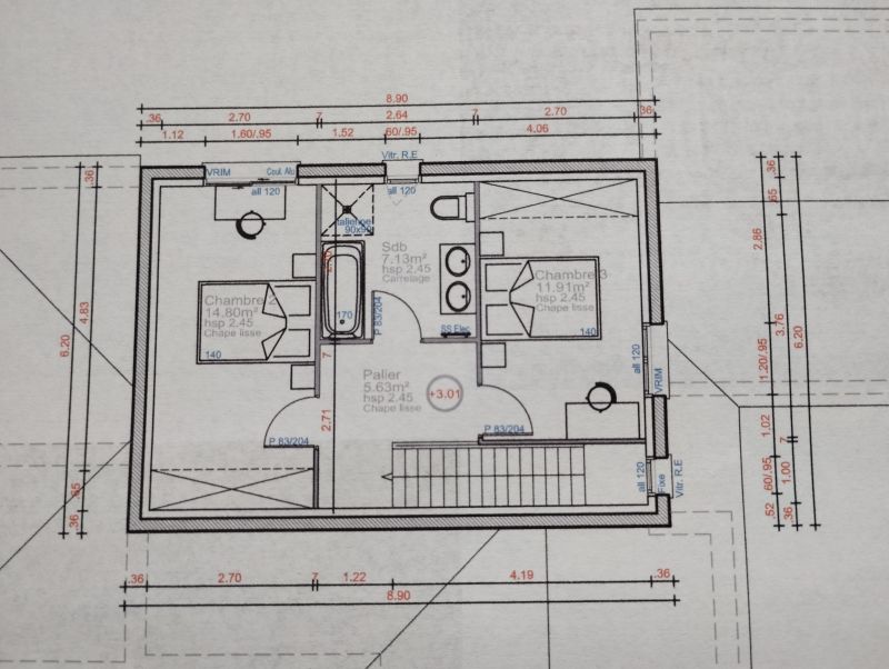
Plan maison R+1 partiel et double garage
Ce sujet comporte 188 messages et a été affiché 3.114 fois
Nouveau sujet
Répondre
|
6 abonnés surveillent ce sujet |
Membre super utile
Membre utile
Membre super utile
Membre ultra utile
Membre utile
Membre ultra utile
Membre utile
Membre ultra utile
Membre utile
Membre super utile
Membre utile
Membre super utile
Membre utile
Membre ultra utile
Membre ultra utile
Membre utile
Membre ultra utile
Membre utile
Membre utile
Membre ultra utile
Membre utile
Membre ultra utile
Membre utile
Membre ultra utile
Membre utile
Membre ultra utile
Membre utile
Membre ultra utile
Membre utile
Membre ultra utile
Membre utile
Membre ultra utile
Membre ultra utile
Membre utile
Membre super utileEn cache depuis le dimanche 26 avril 2026 à 02h47
Ce sujet vous a-t-il aidé ?
0
Votez !
0
Votez !
C'est intéressant aussi !
Devis plan de maison
Demandez, en 5 minutes, 3 devis comparatifs aux professionnels de votre région. Gratuit et sans engagement.
Demandez, en 5 minutes, 3 devis comparatifs aux professionnels de votre région. Gratuit et sans engagement.
25 erreurs à éviter dans son plan de maison
Les guides vous aident à y voir plus clair sur la construction.
Les guides vous aident à y voir plus clair sur la construction.
Tour de France : 10 constructions typiques de nos régions ...
L'équipe de Forum Construire sélectionne pour vous les plus belles photos des membres et du web.
L'équipe de Forum Construire sélectionne pour vous les plus belles photos des membres et du web.
6
abonnés
surveillent ce sujet
surveillent ce sujet
Autres discussions sur ce sujet :
-
plan maison plain pied de 110 m² sur un terrain de 700 m² : qu'en pensez-vous ?
140 réponses Forum Plans de maisons -
Quel plan pour une maison R+1 toit plat avec 6 m de hauteur de façade maxi ?
247 réponses Forum Plans de maisons -
Avis plan maison 10m de façade
33 réponses Forum Plans de maisons
Résolu -
Besoin d'aide - plan maison 3ch + double garage R+1 partiel
182 réponses Forum Plans de maisons -
Didacticiel Google Sketchup
183 réponses Forum Plans de maisons -
Avis plan maison 165 m² plain pied avec double garage
18 réponses Forum Plans de maisons -
Avis plan de maison R+1 140m2 + 44m2 double garage
50 réponses Forum Plans de maisons -
Avis sur notre plan. 140m^2 habitable avec garage double
205 réponses Forum Plans de maisons -
plan plain pied 115m2 + double garage
35 réponses Forum Plans de maisons




Nouveau sujet
Répondre






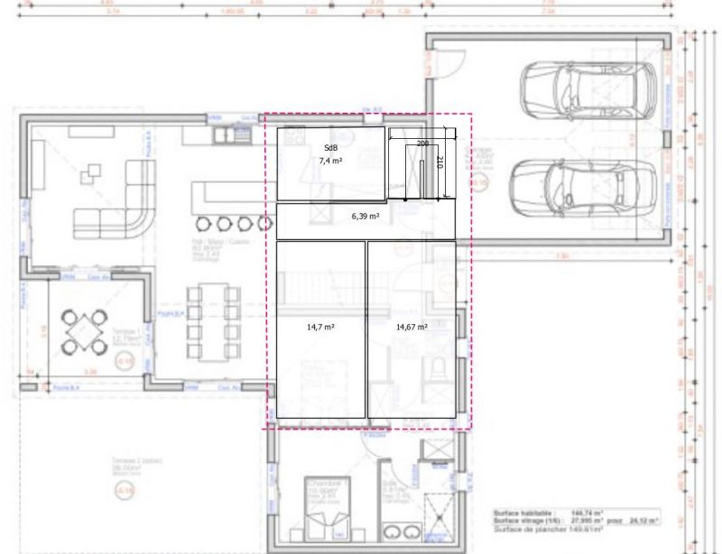
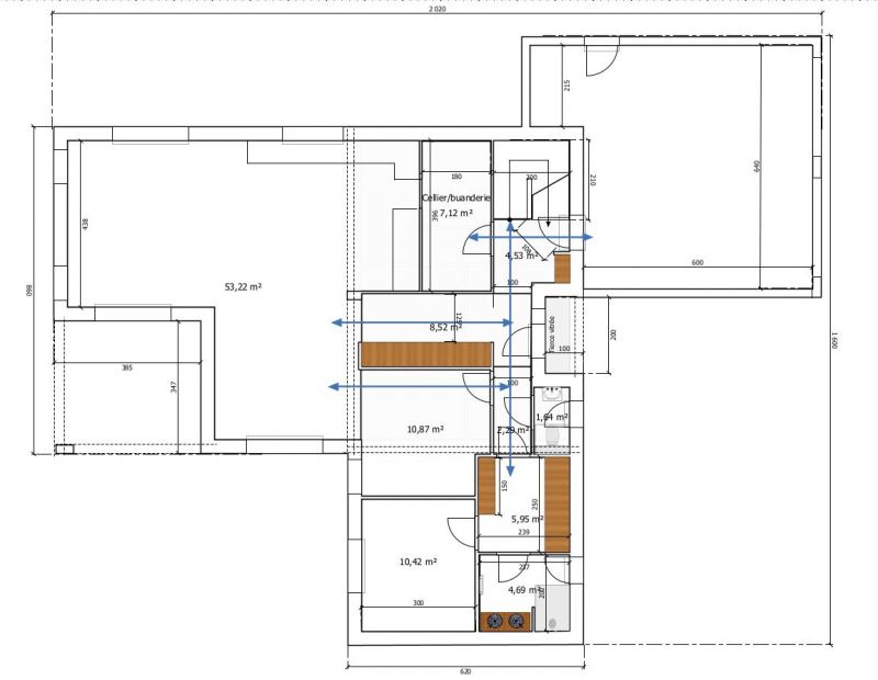
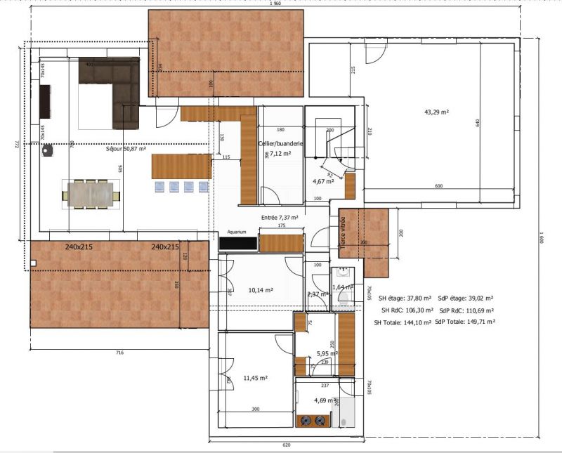
) et qui fait que le plan est à revoir, nous n'imaginions pas que la cuisine serait si sombre avec les 4 baies vitrées sud et ouest.




)




pour une cuisine bien ouverte pour le coup. Mais on ne pensait pas que ça allait être si sombre au centre malgré toutes les baies.












C'est intéressant aussi !




Autres discussions sur ce sujet :
Résolu