Besoin d'aide - plan maison 3ch + double garage R+1 partiel
Ce sujet comporte 183 messages et a été affiché 1.250 fois
Nouveau sujet
Répondre
|
4 abonnés surveillent ce sujet |
Photolover
Membre utile
Photolover
Photolover
Membre utile
Photolover
Photolover
Membre utile
Photolover
Photolover
Membre utile
Photolover
Membre utile
Photolover
Photolover
Membre utile
Photolover
Membre utile
Photolover
Membre utile
Photolover
Membre utile
Photolover
Photolover
Membre utile
Membre utile
Membre utile
Photolover
Membre utile
Photolover
Photolover
Membre utile
Membre utile
Photolover
Membre utile
Membre ultra utile
Photolover
Photolover
Membre ultra utile
Membre utile
Membre ultra utile
Photolover
Photolover
Photolover
Membre ultra utileEn cache depuis le vendredi 17 avril 2026 à 09h28
Ce sujet vous a-t-il aidé ?
1
Votez !
0
Votez !
C'est intéressant aussi !
Devis plan de maison
Demandez, en 5 minutes, 3 devis comparatifs aux professionnels de votre région. Gratuit et sans engagement.
Demandez, en 5 minutes, 3 devis comparatifs aux professionnels de votre région. Gratuit et sans engagement.
25 erreurs à éviter dans son plan de maison
Les guides vous aident à y voir plus clair sur la construction.
Les guides vous aident à y voir plus clair sur la construction.
Tour de France : 10 constructions typiques de nos régions ...
L'équipe de Forum Construire sélectionne pour vous les plus belles photos des membres et du web.
L'équipe de Forum Construire sélectionne pour vous les plus belles photos des membres et du web.
4
abonnés
surveillent ce sujet
surveillent ce sujet
Autres discussions sur ce sujet :
-
Avis plans maison 6 mètres de façade
91 réponses Forum Plans de maisons -
Avis plan de maison R+1 140m2 + 44m2 double garage
50 réponses Forum Plans de maisons -
plan plain pied 115m2 + double garage
35 réponses Forum Plans de maisons -
Avis plan maison de plain pied 95m²
103 réponses Forum Plans de maisons -
plan de maison avec appartement independant
82 réponses Forum Plans de maisons -
plan architecte avec double garage 5,30m de largeur
87 réponses Forum Plans de maisons -
Didacticiel Google Sketchup
183 réponses Forum Plans de maisons -
plan maison R+1 partiel et double garage
187 réponses Forum Plans de maisons -
Avis sur notre plan. 140m^2 habitable avec garage double
205 réponses Forum Plans de maisons




Nouveau sujet
Répondre



















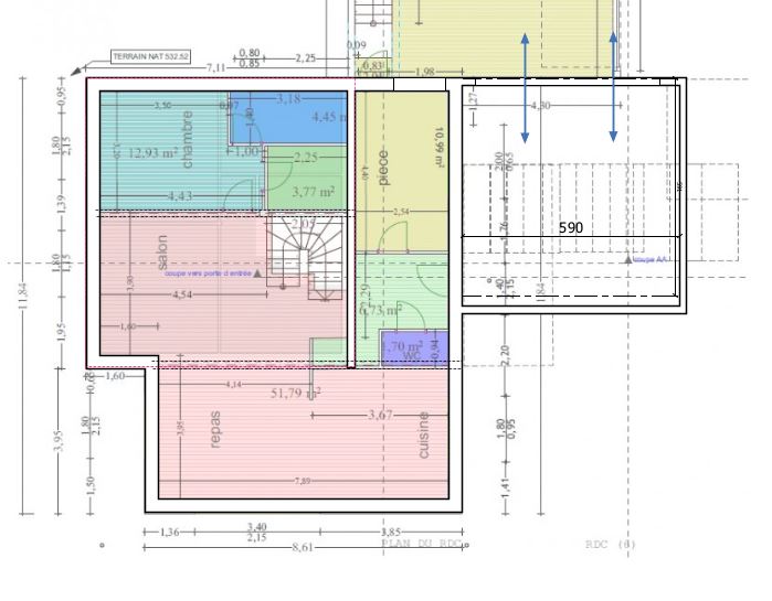
(ce serait bien la meilleure, vous acceptez de prendre de votre temps pour m'aider!). Je comprends qu'il faut que je lâche du lest sur mes idées préconçues, et je vous remercie pour votre franchise. J'ai sûrement besoin d'être bousculée, aussi je vous fais confiance pour l'optimisation des espaces et la rationalisation des couts. Le seul point qui m'est vraiment important dans ce que j'ai listé plus haut est de caser mes 3 armoires de cuisine. Le semi-ilôt n'est pas un impératif, c'est juste que je pensais qu'il me permettait d'avoir plus de rangement pour moins de place prise au sol.


Edité 1 fois, la dernière fois il y a +2 mois.




C'est intéressant aussi !




Autres discussions sur ce sujet :