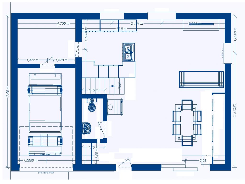
J'attends vos critiques(maison style bastide 100m²)
Ce sujet comporte 31 messages et a été affiché 16.190 fois
Nouveau sujet
Répondre
|
5 abonnés surveillent ce sujet |
Photographe
Membre utile
Photographe
Photographe
Photographe
Photographe
Photographe
Photographe
PhotographeEn cache depuis le mercredi 14 janvier 2026 à 11h40
Ce sujet vous a-t-il aidé ?
0
Votez !
0
Votez !
C'est intéressant aussi !
Devis plan de maison
Demandez, en 5 minutes, 3 devis comparatifs aux professionnels de votre région. Gratuit et sans engagement.
Demandez, en 5 minutes, 3 devis comparatifs aux professionnels de votre région. Gratuit et sans engagement.
25 erreurs à éviter dans son plan de maison
Les guides vous aident à y voir plus clair sur la construction.
Les guides vous aident à y voir plus clair sur la construction.
Tour de France : 10 constructions typiques de nos régions ...
L'équipe de Forum Construire sélectionne pour vous les plus belles photos des membres et du web.
L'équipe de Forum Construire sélectionne pour vous les plus belles photos des membres et du web.
5
abonnés
surveillent ce sujet
surveillent ce sujet
Autres discussions sur ce sujet :
-
Besoin d'avis sur un plan pour une maison de 100-110 m²
30 réponses Forum Plans de maisons -
Abris de jardin dans emprise aux sol
30 réponses Forum Plans de maisons -
Plans après longues réflexions: quand pensez-vous ?
30 réponses Forum Plans de maisons -
LR 48 Terrain 2424m² / Plan maison 140m² BBC
30 réponses Forum Plans de maisons -
Besoin d'avis sur esquisse maison
30 réponses Forum Plans de maisons -
Tricher sur surface habitable pour PC
30 réponses Forum Plans de maisons -
maison à étage partiel : vos avis
30 réponses Forum Plans de maisons -
Vos avis m'intéresse: plan maison R+1 de 130 m2
30 réponses Forum Plans de maisons -
Plan, Terrain : Avis, remarques et critiques
30 réponses Forum Plans de maisons




Nouveau sujet
Répondre




Edité 2 fois, la dernière fois il y a +16 ans.



cela me parait peut pratique...




...)


C'est intéressant aussi !




Autres discussions sur ce sujet :