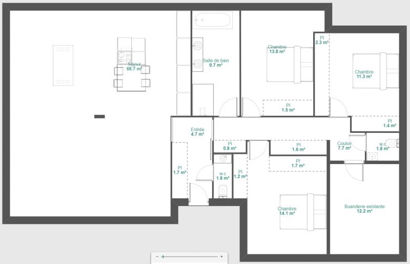
Avis sur une 3 ème chambre à créer avec ce plan de base. Résolu
Ce sujet comporte 43 messages et a été affiché 360 fois
Nouveau sujet
Répondre
|
2 abonnés surveillent ce sujet |
Membre super utile
Membre super utile
Membre super utile
Membre super utile
Membre super utile
Membre utile
Membre utile
Membre utile
Membre utile
Membre super utile
Membre utile
Membre utile
Membre utile
Membre super utile
Membre utile
Membre super utile
Membre utile
Membre utile
Membre utileEn cache depuis le vendredi 19 décembre 2025 à 01h18
Ce sujet vous a-t-il aidé ?
0
Votez !
0
Votez !
C'est intéressant aussi !
Devis plan de maison
Demandez, en 5 minutes, 3 devis comparatifs aux professionnels de votre région. Gratuit et sans engagement.
Demandez, en 5 minutes, 3 devis comparatifs aux professionnels de votre région. Gratuit et sans engagement.
25 erreurs à éviter dans son plan de maison
Les guides vous aident à y voir plus clair sur la construction.
Les guides vous aident à y voir plus clair sur la construction.
Les 10 maisons les plus extraordinaires des membres ...
L'équipe de Forum Construire sélectionne pour vous les plus belles photos des membres et du web.
L'équipe de Forum Construire sélectionne pour vous les plus belles photos des membres et du web.
2
abonnés
surveillent ce sujet
surveillent ce sujet
Autres discussions sur ce sujet :
-
Demande d'avis - plan maison de plain-pied - Environ 115m²
42 réponses Forum Plans de maisons -
Avis plan maison 160m2 en R+1
42 réponses Forum Plans de maisons -
plan R+1 ~132m² avec bureau et chambre parentale au RDC
46 réponses Forum Plans de maisons -
Avis sur amélioration du plan de la chambre parentale
27 réponses Forum Plans de maisons -
Avis sur plan de maison traditionnelle
42 réponses Forum Plans de maisons -
plan de maison avec chambre à l'opposé
16 réponses Forum Plans de maisons
Résolu -
plan de petite chambre parentale à débattre :-)
38 réponses Forum Plans de maisons -
Ma cabanne à la Réunion: 90m² genre Community Cottage
42 réponses Forum Plans de maisons -
Avis plan bureau chambre d'amis
25 réponses Forum Plans de maisons




Nouveau sujet
Répondre





Edité 2 fois, la dernière fois il y a +1 mois.






C'est intéressant aussi !




Autres discussions sur ce sujet :
Résolu