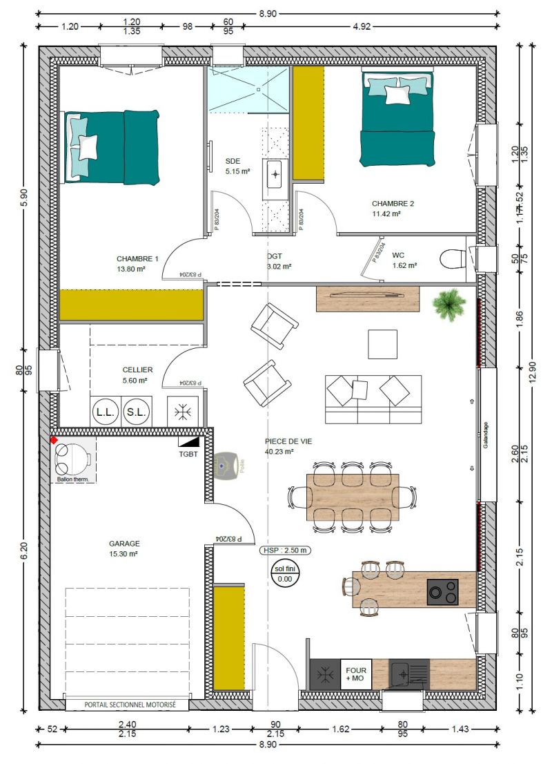
Demande d'avis plan Maison + CCMI
Ce sujet comporte 18 messages et a été affiché 286 fois
Nouveau sujet
Répondre
|
3 abonnés surveillent ce sujet |
Membre utile
Membre utile
Membre ultra utile
Membre ultra utile
Membre utile
Membre utile
Membre super utile
Membre utile
Membre ultra utile
Membre super utileActuellement en ligne !
En cache depuis le samedi 11 avril 2026 à 16h31
Ce sujet vous a-t-il aidé ?
0
Votez !
0
Votez !
C'est intéressant aussi !
Devis plan de maison
Demandez, en 5 minutes, 3 devis comparatifs aux professionnels de votre région. Gratuit et sans engagement.
Demandez, en 5 minutes, 3 devis comparatifs aux professionnels de votre région. Gratuit et sans engagement.
25 erreurs à éviter dans son plan de maison
Les guides vous aident à y voir plus clair sur la construction.
Les guides vous aident à y voir plus clair sur la construction.
Les 10 maisons les plus extraordinaires des membres ...
L'équipe de Forum Construire sélectionne pour vous les plus belles photos des membres et du web.
L'équipe de Forum Construire sélectionne pour vous les plus belles photos des membres et du web.
3
abonnés
surveillent ce sujet
surveillent ce sujet
Autres discussions sur ce sujet :
-
Optimisation du plan de ma maison
17 réponses Forum Plans de maisons -
Portes dessinées sur les plans du PC mais pas notées dans le ccmi
24 réponses Forum Plans de maisons -
Avis plan maison SSOL+R+1 sur pente 15% orienté S-O
17 réponses Forum Plans de maisons -
Plans ccmi non respectés
60 réponses Forum Plans de maisons -
Avis plan petite maison de 68 M²
17 réponses Forum Plans de maisons -
ccmi devis pour 80 mètres carrés + terrasse
9 réponses Forum Plans de maisons -
Plan du ccmi signer (definitif ou pas)???
7 réponses Forum Plans de maisons -
Avis sur nouveau plan de maison
17 réponses Forum Plans de maisons
Résolu -
Avis plan avis signature ccmi ?
21 réponses Forum Plans de maisons




Nouveau sujet
Répondre





























Edité 1 fois, la dernière fois il y a +3 mois.

C'est intéressant aussi !




Autres discussions sur ce sujet :
Résolu