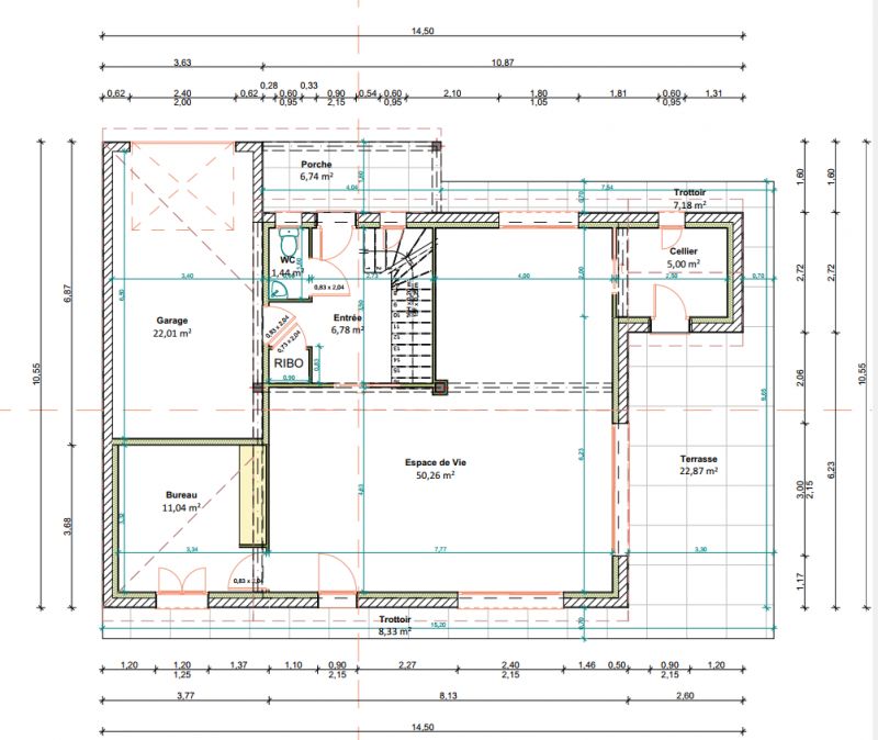
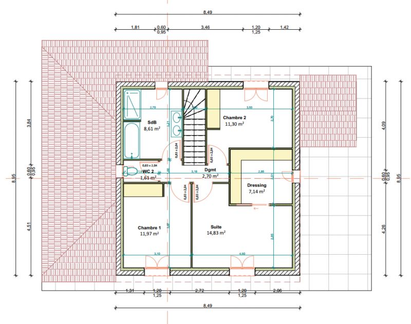
Avis sur nos plans de maison neuve (132 m² R+1 – 3 chambres + suite parentale – CCMI)
Ce sujet comporte 17 messages et a été affiché 338 fois
Nouveau sujet
Répondre
|
4 abonnés surveillent ce sujet |
Membre utile
Membre super utile
Membre ultra utile
Membre ultra utile
Membre super utile
Membre utile
Membre utile
Membre super utile
Membre utile
Membre super utileEn cache depuis le samedi 07 mars 2026 à 11h26
Ce sujet vous a-t-il aidé ?
0
Votez !
0
Votez !
C'est intéressant aussi !
Devis plan de maison
Demandez, en 5 minutes, 3 devis comparatifs aux professionnels de votre région. Gratuit et sans engagement.
Demandez, en 5 minutes, 3 devis comparatifs aux professionnels de votre région. Gratuit et sans engagement.
25 erreurs à éviter dans son plan de maison
Les guides vous aident à y voir plus clair sur la construction.
Les guides vous aident à y voir plus clair sur la construction.
Les 10 maisons les plus extraordinaires des membres ...
L'équipe de Forum Construire sélectionne pour vous les plus belles photos des membres et du web.
L'équipe de Forum Construire sélectionne pour vous les plus belles photos des membres et du web.
4
abonnés
surveillent ce sujet
surveillent ce sujet
Autres discussions sur ce sujet :
-
Avis plan de maison en L
13 réponses Forum Plans de maisons -
Conseils maison combles aménagés 6 chambres
90 réponses Forum Plans de maisons -
Besoin de conseils amélioration plan de maison plain-pied 4 chambres
33 réponses Forum Plans de maisons
Résolu -
maison de 62 m2 - Optimisation d'un espace nuit
15 réponses Forum Plans de maisons -
maison de 130m² à étage avec 4 chambres - Besoin de conseils avisés
472 réponses Forum Plans de maisons -
Avis dernier plan de maison MY concept
15 réponses Forum Plans de maisons
Résolu -
Plan maison 3 chambres - on garde ou on jette tout ?
75 réponses Forum Plans de maisons
Résolu -
Demande d'avis maison Plain Pied 4 chambres
57 réponses Forum Plans de maisons -
Plain pied ou sous sol complet...? Je ne sais pas et vous ?
17 réponses Forum Plans de maisons




Nouveau sujet
Répondre





Edité 1 fois, la dernière fois il y a +4 mois.

C'est intéressant aussi !




Autres discussions sur ce sujet :
Résolu