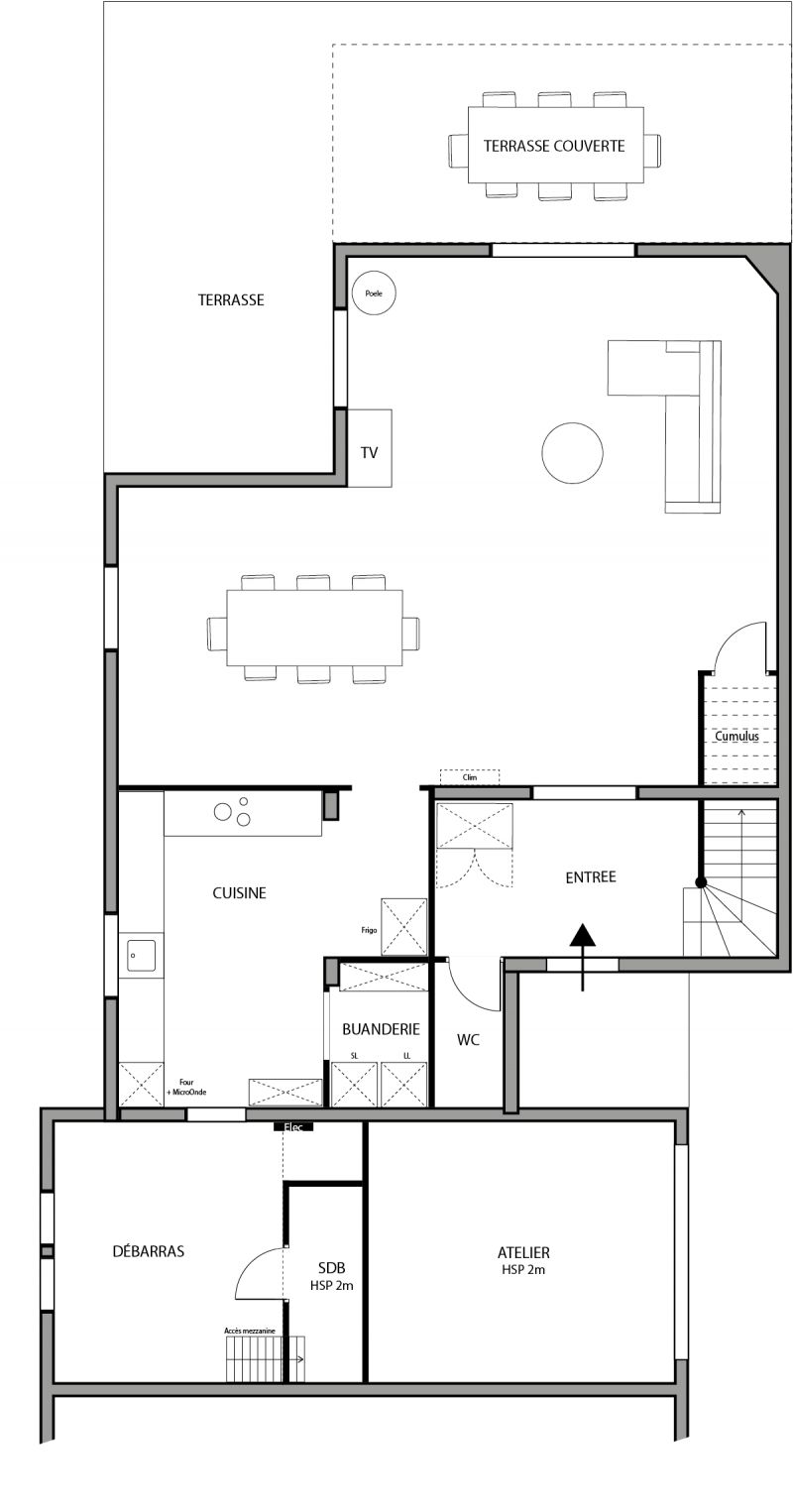
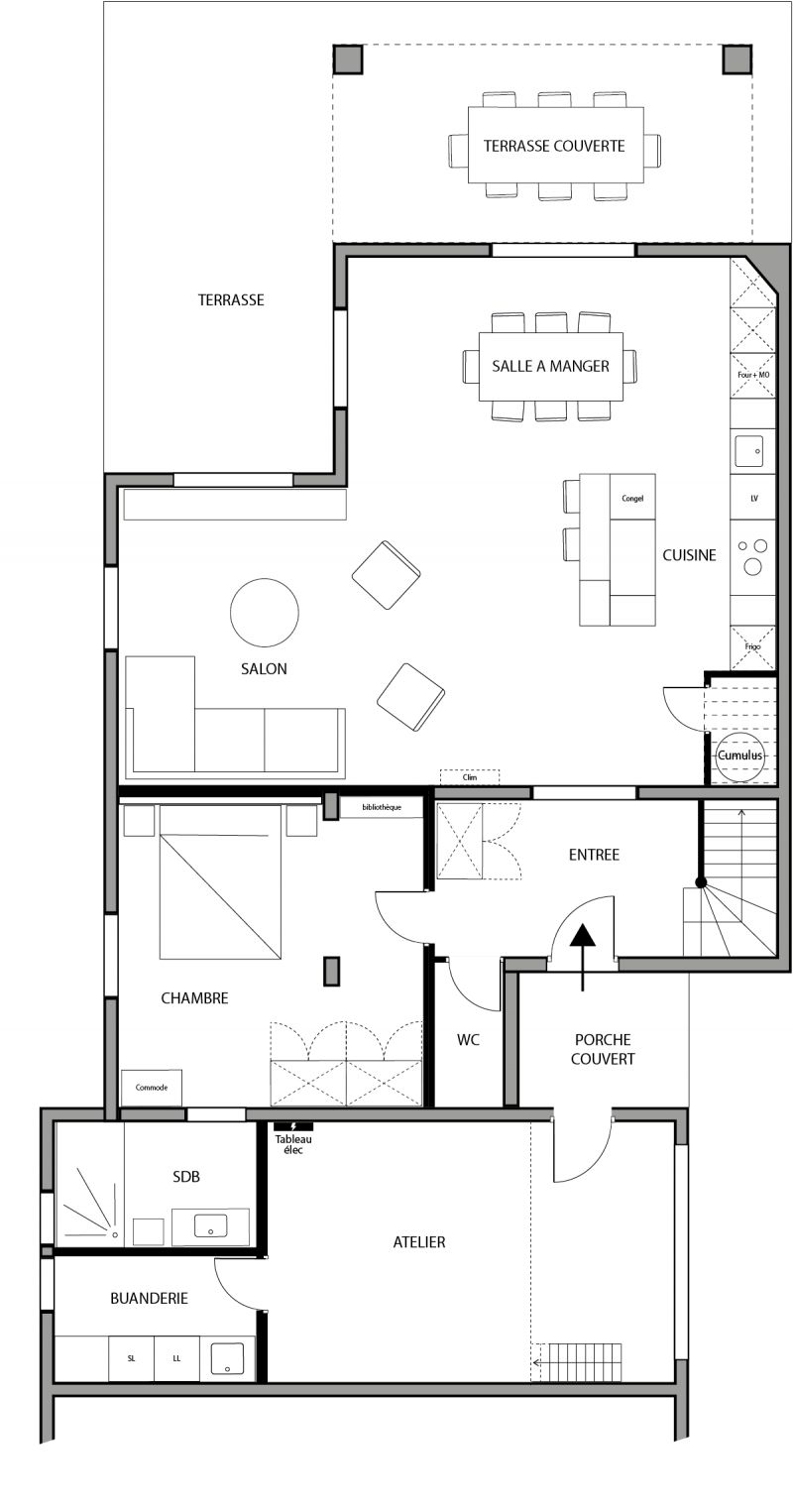
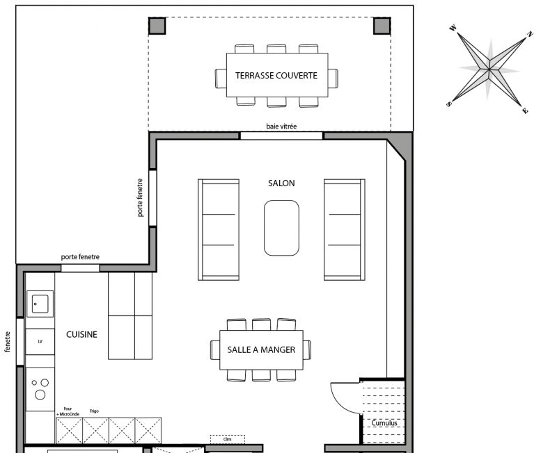
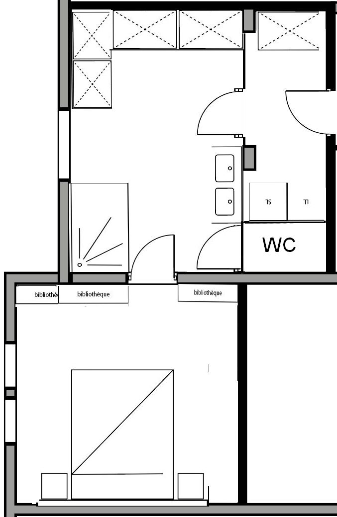
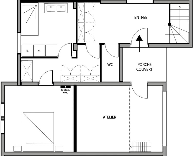
Avis sur l'agencement du RDC de notre maison
Ce sujet comporte 61 messages et a été affiché 926 fois
Nouveau sujet
Répondre
|
5 abonnés surveillent ce sujet |
Membre utile
Membre utile
Membre utile
Membre super utile
Membre utile
Membre utile
Membre utile
Membre super utile
Membre super utile
Membre utile
Membre utile
Membre utile
Membre utile
Membre utile
Membre utile
Membre utile
Membre super utile
Membre utile
Membre utile
Membre utile
Membre super utile
Membre utile
Membre super utile
Membre utile
Membre utileEn cache depuis le dimanche 26 avril 2026 à 14h45
Ce sujet vous a-t-il aidé ?
0
Votez !
0
Votez !
C'est intéressant aussi !
Devis plan de maison
Demandez, en 5 minutes, 3 devis comparatifs aux professionnels de votre région. Gratuit et sans engagement.
Demandez, en 5 minutes, 3 devis comparatifs aux professionnels de votre région. Gratuit et sans engagement.
25 erreurs à éviter dans son plan de maison
Les guides vous aident à y voir plus clair sur la construction.
Les guides vous aident à y voir plus clair sur la construction.
Les 10 maisons les plus extraordinaires des membres ...
L'équipe de Forum Construire sélectionne pour vous les plus belles photos des membres et du web.
L'équipe de Forum Construire sélectionne pour vous les plus belles photos des membres et du web.
5
abonnés
surveillent ce sujet
surveillent ce sujet
Autres discussions sur ce sujet :
-
Avis plan maison RDC 80m2 façade de 9m
31 réponses Forum Plans de maisons
Résolu -
maison avec terrasse à l'ouest, votre avis et expérience ?
35 réponses Forum Plans de maisons -
Que pensez vous du plan de l archi ?
59 réponses Forum Plans de maisons -
Plan de maison avec appartement independant
82 réponses Forum Plans de maisons -
Dressing au détriment de la superficie de la chambre, votre avis please
58 réponses Forum Plans de maisons -
Petite habitation 50m2 sur terrain pour héberger parents vieillissants.
60 réponses Forum Plans de maisons -
Avis sur plan maison de plain-pied de 71m2
31 réponses Forum Plans de maisons -
Avis plan de maison plein pied 130 m2
31 réponses Forum Plans de maisons -
Avis plans maison 6 mètres de façade
91 réponses Forum Plans de maisons




Nouveau sujet
Répondre




Edité 1 fois, la dernière fois il y a +5 mois.









C'est intéressant aussi !




Autres discussions sur ce sujet :
Résolu