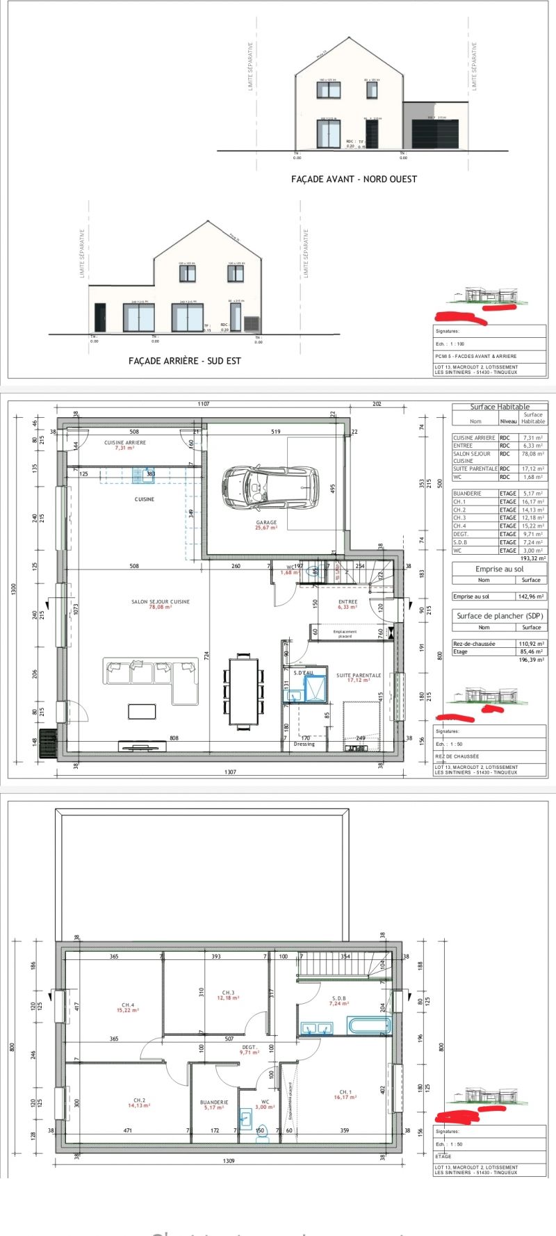
Besoin d'aide pour implantation maison R+1
Ce sujet comporte 53 messages et a été affiché 657 fois
Nouveau sujet
Répondre
|
4 abonnés surveillent ce sujet |
Membre ultra utileActuellement en ligne !
Membre utile
Membre super utile
Membre utile
Membre ultra utileActuellement en ligne !
Membre utile
Membre utile
Membre utile
Membre utile
Membre super utile
Membre utile
Membre utile
Membre super utile
Membre utile
Membre utile
Membre ultra utile
Membre ultra utileActuellement en ligne !
Membre ultra utile
Membre utile
Membre utile
Membre ultra utileActuellement en ligne !
Membre ultra utile
Membre utile
Membre utile
Membre utileEn cache depuis le dimanche 19 avril 2026 à 00h33
Ce sujet vous a-t-il aidé ?
0
Votez !
0
Votez !
C'est intéressant aussi !
Devis plan de maison
Demandez, en 5 minutes, 3 devis comparatifs aux professionnels de votre région. Gratuit et sans engagement.
Demandez, en 5 minutes, 3 devis comparatifs aux professionnels de votre région. Gratuit et sans engagement.
25 erreurs à éviter dans son plan de maison
Les guides vous aident à y voir plus clair sur la construction.
Les guides vous aident à y voir plus clair sur la construction.
Tour de France : 10 constructions typiques de nos régions ...
L'équipe de Forum Construire sélectionne pour vous les plus belles photos des membres et du web.
L'équipe de Forum Construire sélectionne pour vous les plus belles photos des membres et du web.
4
abonnés
surveillent ce sujet
surveillent ce sujet
Autres discussions sur ce sujet :
-
implantation maison sur terrain plat de 600m2
81 réponses Forum Plans de maisons -
Merci pour vos avis concernant le plan et l'implantation de cette maison
275 réponses Forum Plans de maisons -
Avis sur implantation de maison plein pied sur terrain trapézoïdal
177 réponses Forum Plans de maisons -
Réagencement maison rectangulaire aide choix d'implantation dans SDB rikiki
162 réponses Forum Plans de maisons -
Demande avis implantation-agencement maison 115m² plain pied
334 réponses Forum Plans de maisons




Nouveau sujet
Répondre










Edité 1 fois, la dernière fois il y a 7 jours.
C'est intéressant aussi !




Autres discussions sur ce sujet :